Устройство и принцип действия откатных ворот
Свое название конструкция получила из-за способа открывания. Полотно ворот перемещается вдоль забора, то есть в плоскости воротного проема, тем самым занимая меньше места.
Существует три вида устройства откатных ворот:
- рельсовые;
- подвесные;
- консольные.

В конструкции откатных ворот на рельсе есть ролики, расположенные в нижней части. На них все сооружение и упирается, с их помощью и происходит перемещение полотна. Опора роликов идет на рельс, уложенный в дорожное покрытие. В верхней части ворота удерживаются кронштейном, на котором закреплены боковые ролики.
Откат таких ворот равен ширине проема.
Недостатки конструкции:
- рельс располагается по всей ширине проезда;
- последний все время забивается грязью, а зимой снегом и льдом, что чревато проблемами с открытием ворот. Поэтому рельс надо периодически чистить. Можно установить нагревательный кабель, что решает проблему обледенения, но это увеличивает монтажные расходы, плюс дополнительные траты на электроэнергию.
В конструкции вторых присутствует верхняя балка, по которой ворота на роликах перемещаются. Именно она ограничивает высоту проезда. Хотя можно установить ворота со съемной верхней балкой. Но это усложняет конструкцию и снижает ее надежность. Съемная балка – это также увеличение финансовых расходов. Ширина ворот равна длине отката.
Выдвижные ворота третьего вида чаще остальных сегодня используются. Все дело в роликовых опорах, которые располагаются вне зоны проема, и он ничем не ограничен. В конструкции используется такой же кронштейн, как и в первом варианте.
Сдвижные ворота этого типа имеют длину больше ширины проема в 1,5 раза. Дополнительная часть выполняет функции противовеса основной конструкции, имеет конфигурацию трапеции или треугольника. Она увеличивает место для смещения ворот. Под эту разновидность сооружается более мощный фундамент.
В устройство консольных откатных ворот добавляются еще два элемента – верхний и нижний уловители. Они удерживают полотно в равновесии, когда оно закрыто. Располагаются элементы на противоположном столбе воротного проема. При этом в нижнем уловителе есть полка, на которую консоль опирается в закрытом состоянии.

Профнастил — преимущества и недостатки
Профнастил является достаточно прочным строительным материалом, который пользуется большой популярностью. Благодаря его прочному покрытию он имеет хорошую защиту от воды и снега. Большой выбор различных видов профнастила и цветов позволяет владельцам частных домов сооружать конструкции по своему усмотрению. При выборе профнастила большое значение имеет его вес. Конструкция ворот получается достаточно лёгкой и удобной для открывания.

Распашные ворота из профнастила на кирпичных опорах
Преимущества
- Высокая прочность материала, благодаря чему забор может выдерживать большие механические нагрузки, в том числе и сильные порывы ветра;
- Устойчивость к коррозии. Такой эффект достигается за счёт использования современных высокопрочных покрытий, срок службы которых может достигать более 40 лет. Защитный слой состоит из трёх покрытий: антикоррозийного, полимерного и водоотталкивающего;
- Небольшая толщина делает листы достаточно лёгкими, что упрощает процесс монтажа конструкции;
- Ворота можно сделать за несколько дней при наличии всех необходимых инструментов и дополнительных материалов;
- Невысокая стоимость профлистов;
- Долговечность материала. Конструкции ворот из профлиста могут простоять около 25 лет и при этом не требуют особенного ухода;
- Возможность выбора цветовой палитры и фактуры исходя из личных предпочтений;
- Возможность строительства забора любой высоты, так как максимальная длина листа составляет 12 метров;
- Экономия на отделочных материалах. Листы профнастила не подвержены воздействию солнечных лучей, поэтому не теряют свой цвет.
Недостатки
- При покупке низкокачественного материала он не может гарантировать всех вышеперечисленных качеств;
- Низкая степень звукоизоляции;
- При небольшой толщине листа его можно легко деформировать с помощью сильного удара тяжёлым предметом;
- При небольших повреждениях и царапинах возникновение коррозии неизбежно, поэтому необходимо тщательно следить за его целостностью.
Подбираем материалы для каркаса и обшивки
Чтобы изготовить надежную калитку для забора в частном секторе, нужно правильно выбрать материалы.
Для сборки рамки створки стандартных размеров потребуется купить профильную трубу сечением (квадрат) 40*40 мм или 60*30 мм.
При монтаже замка пригодятся металлические пластины – 15*20 см, 30*40 см. Они выступают элементами усиления фурнитуры.

Фото: обработка сварных швом петли
Для навешивания створки – 2 дверные петли ф30 мм. Материал – металл, полимер (на выбор).
Подробные рекомендации по выбору профнастила.
Красивым дополнением станут кованые элементы. Они украсят каркас и усилят его прочность, устойчивость к взлому.
Распашные ворота для гаража: плюсы и минусы
Кроме внешнего вида, распашные деревянные ворота в гараж выделяются и иными достоинствами:
- Дерево хорошо пропускает пары, что снизит уровень влажности внутри гаража и положительно скажется на состоянии автомобиля.
- Доступность и низкая цена – приобрести брус и доски можно в ближайшем строительном магазине, а стоят они не так уж и много.
- Простота в обработке. Для работы с этим материалом не требуются редкие и очень дорогие инструменты, их можно найти в любом домохозяйстве, и, скорее всего, вы знаете, что с ними делать.
Ну а если вы затеяли строительство из бруса или бревен, то установка ворот в брусовый гараж будет для вас оптимальным вариантом, так как такие ворота лучше всего будут сочетаться с внешним видом вашего гаража, дома и всего участка в целом.
Однако, если вы хотите ставить в гараж деревянные ворота, помните о недостатках:
Какие еще есть виды гаражных ворот, читайте здесь.

Готовы засучить рукава и приступить к делу? Если да, то начнем с выбора материалов.
Материалы и инструменты
Итак, из чего мы будем делать распашные деревянные ворота для гаража:
- Брус для проема. Вертикальные стойки должны закапываться в землю на 1-1,5 метра, плюс высота проема гаража. Что же касается сечения, то достаточно крепким будет брус 100х100 мм. Перемычка между стойками тоже должна быть выполнена из бруса и иметь сечение 50х100 мм.
- Каркас ворот должен быть достаточно крепким, но не слишком тяжелым, чтобы снизить нагрузки на петли и стойки. Для его изготовления следует взять брус сечением 50х50 мм.
- Обшивка выполняется из досок толщиной 25 мм. Что же касается ширины, то ее вы можете выбрать самостоятельно, но оптимальными цифрами являются 10-20 см.
- Петли для ворот. Учитывая их массу, нагрузка на них будет немалой, потому лучше приобрести стреловидные петли, так как они крепче и надежнее (и, кроме того, они украсят ваши ворота).
- Битумная мастика.
- Цемент.
- Пропитки для защиты от пожара, насекомых и грибков, антисептик.
- Морилка или лак.
- Крепежные материалы – нагеля (деревянные гвозди) и саморезы. Если гараж не из дерева, то понадобятся длинные болты и дюбели
Инструменты, которые нужны для создания своими руками распашных ворот на гараж, можно найти в любом частном доме, либо спросить у соседей и друзей:
- электрический лобзик и ножовка для дерева;
- шуруповерт, дрель, киянка и молоток;
- стамеска и рубанок;
- уровень, уголок и рулетка;
- шлифовальная шкурка или что-нибудь подобное;
- валик или кисти для нанесения пропиток и лака.
Читайте здесь о том, как сделать своими руками козырек для гаражных ворот.
Галерея различных видов ворот
Из профнастила можно сделать различные типы ворот, но основными из них являются:
- Распашные (обычные и гаражные);
- Подъёмные (обычные и гаражные);
- Откатные (обычные и гаражные);
- Другие.
Если вы решили установить у себя ворота из профнастила, то лучше всего отдать предпочтение распашными, так как они более лёгкие в изготовлении.
Откатные типы ворот
Такие конструкции позволяют существенно экономить пространство во время их открывания. Ворота движутся вдоль всего забора или стены гаража и откатываются полностью вбок. Существует три типа: подвесные (обычные или гаражные), консольные и на колёсах. Самыми популярными являются ворота консольные, так как они не мешают въезду любого вида транспорта.

Откатные консольные ворота из профнастила
Распашные ворота
Это наиболее распространённый тип ворот. Несмотря на свой минус (обязательное наличие большого свободного места для их эксплуатации), они привлекают владельцев частных домов простотой изготовления и дешевизной.

распашные ворота из профнастила на металлических опорах
Распашные с калиткой
Распашные ворота могут быть обычными, а могут иметь удобную калитку. Не всегда удобно при выходе открывать обе створки ворот, поэтому в них предусматривают небольшую калитку.

Распашные ворота из профнастила с калиткой
Декоративные
Такие ворота обычно украшают различными коваными элементами. Для того чтобы сделать красивые ворота с художественными декоративными металлическими элементами необязательно иметь навыки кузнеца. Их можно просто приобрести в специализированных компаниях, а для того чтобы собрать потребуются только навыки сварщика.

Распашные ворота из профнастила с коваными элементами
По поводу калитки
Обходится только воротами неудобно: даже такой материал, как профлист с элементами ковки достаточно тяжел, чтобы открывать створки, когда нужно, к примеру, сходить в ближайший магазин. Поэтому ворота обычно имеют какой-либо из вариантов калитки. Выполнить ее можно двумя способами:
- отдельной конструкцией;
- врезкой в профлист самих ворот.
Экономичнее второй вариант калитки, поскольку при его использовании не требуется устанавливать дополнительные столбы. Однако эстетичнее и практичнее первый: калитку, смонтированную отдельно, использовать удобнее, она не нагружает створку, в которую врезана, и не выбивается из общего оформления. Второй способ обычно предпочитается вынужденно, когда на обособленную элементарно не хватает пространства.

Ажурная ковка смотрится красиво
Калитка своими руками
Содержание После принятия решения огородить участок при помощи забора из профнастила, появляется необходимость устройства калитки. Она может быть сделана без всяких проблем, если следовать инструкции, предложенной в нашей статье.
Для изготовления калитки своими руками понадобятся следующие инструменты: сварочный аппарат, углошлифовальная машинка с отрезными и шлифовальными кругами — «болгарка», дрель-шуруповёрт, пистолет для монтажа заклёпок, кисти для окраски, отвёртка и уровень.
Пошаговая инструкция по изготовлению калитки из профнастила
В этой инструкции представлен способ сварки каркаса калитки прямо на опорных столбах.
1. Изначально следует разметить место под будущую калитку, оставляя проём необходимой ширины в заборе между двумя столбами, к которым впоследствии потребуется приварить трубы — основу каркаса будущей калитки. Благодаря такой схеме, будущая калитка идеально подойдёт по размерам. В этом случае, проблемы, возникающие, когда конструкция изготавливается в другом месте, будут исключены.
2. Вопрос, как сделать калитку, решается просто. Ее каркас изготавливается из таких же квадратных труб, как и каркас забора. Для избежания деформации каркаса калитки, трубы привариваются к столбам забора.
3. После этого, к вертикальной стойке рамки калитки приваривается верхняя часть петель.
Для обеспечения жёсткости конструкции посредине рамки нужно приварить поперечину из той же квадратной трубы. Горизонтальность поперечной перемычки следует проверить при помощи уровня.
4. На следующем этапе, каркас распашной калитки из профлиста следует срезать в местах крепления труб к столбам. Необходимо обрезать все лишние куски труб, тщательно проваривая все места соединений, а сварочные стыки зачистить при помощи шлифовального круга.
5. При помощи «болгарки» нужно зачистить места установки нижних частей навесных петель на столбах забора. Сначала следует приварить нижнюю часть верхней петли, после чего можно навесить каркас калитки и по месту приварить нижнюю часть второй петли.
6. Изготовление калитки из металлопрофиля требует проверки правильности её открывания: если всё выполнено правильно — она свободно открывается.
7. Необходимо снять калитку и приварить петли на столбах забора со всех сторон с зачисткой сварочных швов. При сварке петель нужно обеспечивать защиту листов профнастила от попадания искр и окалины от сварочной дуги.
8. При помощи «болгарки» требуется вырезать место под установку врезного замка, предварительно разметив все размеры на стойке калитки согласно чертежам.
9. На фото видно, как, установив каркас калитки на петли, можно разметить место под установку ответной планки замка на столбе забора. Потребуется укрепить ответную планку на стойку забора, используя дрель-шуруповёрт. Далее следует проверить правильность работы замка, после чего можно приступить к окрашиванию всей конструкции для защиты от ржавчины.
10. Используя дрель и пистолет для заклёпок, следует выполнить монтаж предварительно подогнанного по размерам профлиста на каркас калитки. Как вариант, можно закрепить профнастил, применяя кровельные саморезы. Смонтировав металлопрофиль, необходимо выполнить установку накладок с ручками на замок.
11. Для ограничения открывания калитки, внутрь проёма желательно установить ограничитель из кусочка металла, отрезанного от трубы.
Благодаря сборке каркаса прямо на стойках забора, работа, при наличии помощника, займёт не более двух часов времени. Сама же калитка будет радовать своих новоиспечённых владельцев надёжностью и неприхотливостью в эксплуатации.

Особенности металлопрофиля
Как видно на фото, калитка и ворота из металлопрофиля выглядят очень эффектно. Но одного внешнего вида недостаточно, ведь металлопрофиль нуждается в дополнительном уходе. Так, чтобы защитить этот материал от внешних воздействий и увеличить срок его службы, при установке ворот с калиткой покройте их полимером для улучшения прочности. А если выбрать покрытие того или иного оттенка, вы придадите воротам дополнительную привлекательность.
Преимущества металлопрофиля перед другими материалами для установки калиток и ворот:
- функциональность;
- практичность при обработке;
- малый вес и удобство при установке;
- если подключать к воротам и калитке автоматизацию, можно использовать маломощный привод, позволяющий сэкономить на электричестве;
- долговечность материала;
- доступная цена металлопрофиля.
Чем откатные ворота из профлиста лучше распашных
Если кратко, то откатные ворота:
- легче автоматизировать;
- надежнее фиксируются в открытом или закрытом положении;
- подходят для широких въездов;
- компактнее;
- сложнее заблокировать снежными заносами;
- прочее и надежнее;
- устойчивее ко взлому.
А теперь — отдельно о каждом преимуществе.
Раздвижные ворота из металлопрофиля открываются, сдвигаясь вбок по направляющей. Поэтому их автоматизация сводится к установке сравнительно простого и очень надежного механизма с зубчатой передачей. Для сравнения, автоматика для распашных ворот ставится на обе створки, и должна быть достаточно мощной, чтобы противостоять ветровой нагрузке. Кроме того, бюджетные модели не рассчитаны на установку на стандартные для нас широкие кирпичные столбы.
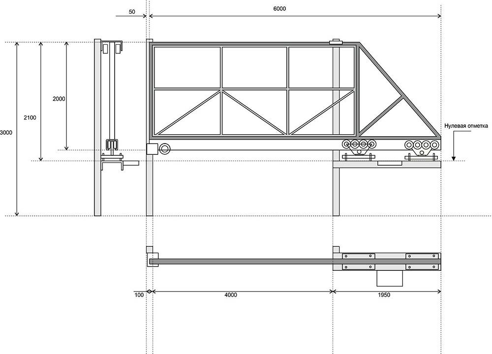
Теперь насчет фиксации. В закрытом состоянии на месте откатные ворота из профиля удерживают: две роликовые каретки и верхние ролики с одной стороны, нижний и верхний улавливатель с другой. Эти элементы делаются из толстой стали 3–4 мм и привариваются сплошным швом к опорным столбам и закладной в фундаменте. В открытом положении ворота просто полностью сдвигаются за стену. Поэтому они легко выдерживают штормовые ветра и никогда не закроются в самый неподходящий момент.
Двигающаяся по направляющей створка, удерживаемая в двух точках роликовыми каретками, может быть 4, 5, 6 и более метров в ширину. А откатные ворота на рельсах способны и вовсе перекрыть проезды в несколько полос. Стандарт для распашных ворот — примерно 2 метра створка и 4 метра проезд. На укрепленные петли и усиленные опоры можно повесить створки 2,5 метра, но не более.
Из-за все того же открытия вбок, сдвижные ворота из профнастила практически не занимают места. Для их работы нужна только узкая полоска вдоль забора, что не проблема даже в условиях плотной городской застройки и засаженного растениями палисадника.
По этой же причине открытие и закрытие таких ворот сложнее заблокировать зимой. Во-первых, в зависимости от направления ветра, участок под забором и вовсе может быть свободен от снега, даже если вокруг сугробы. Во-вторых, очистка полосы в 100 мм для движения направляющей и всего проезда для открытия распашных ворот — это принципиально разная по затраченным усилиям работа.
Наконец, одно полотно на мощном каркасе выдерживает значительно большую нагрузку, чем соединенные замком и запорами отдельные створки. Откатные ворота с профлистом в принципе не могут «разболтаться» со временем, что часто случается с распашными при сильных ветрах.
Наконец, каким бы ни был запор на откатных воротах, он всегда на участке: либо створку удерживает двигатель автоматики, либо специальный замок с ригелем в форме крюка, который спрятан за опорным столбом. Конечно, любой замок можно взломать, но в случае с откатными воротами сделать это сложнее.
Как прикрепить ворота и калитку к столбам
Чтобы установить готовую конструкцию нужно применять завесы, которые не допустят последующего провисания ворот или калитки. Они должны быть оснащены подшипниками, которые создадут плавность при открывании и закрывании.
Как крепить металлопрофиль
Данный этап работы является завершающим и его нужно выполнять в перчатках, поскольку края металлпрофиля очень острые. Последовательность действий такова:
- вырезаем листы нужных размеров;
- чистим заусенцы;
- прикладываем внахлест листы;
- просверливаем отверстие и крепим саморезами.
Саморезы в данном случае лучший тип крепления, заклепки использовать не рекомендуется, поскольку они со временем расшатываются или срезаются.
П-образным профилем окантуйте калитку и ворота, его уже можно крепить заклепками.
Установку нужно проводить по верхней части металлопрофиля, чтобы влага не попадала внутрь при двусторонней обшивке калитки.
Установка опорных столбов
Первый и один из самых трудоемких этапов работы — это монтаж опорных столбов, на которых будет держаться калитка из металлопрофиля, своими руками. Сделать это несложно, но времени займет достаточно много, особенно если речь идет о кладке из кирпича.
Существует два варианта устройства забора из профилированного листа. Первый и наиболее простой — это вариант крепления ограждения к вкопанным в землю столбам из металлических труб. Во втором варианте забор с воротами и калиткой из профнастила крепятся к столбам из кирпича или камня.
Использование металлических опорных столбов
Использование профилированного листа для изготовления входной группы получило такое распространение, так как сделать калитку и ворота из профнастила очень просто и недорого. Поэтому в подавляющем большинстве случаев в качестве опор применяются именно металлические трубы. Установить их гораздо проще, дешевле и быстрее, чем кирпичные.
Для опорных столбов калитки лучше всего подойдет профильная труба 80х80 мм с толщиной стенки 3-4 мм. Для их установки в земле выкапываются ямы, размером не менее 300х300 мм и глубиной не менее 1,0 м.

Предыдущий Следующий
Ворота и калитки из профнастила – фото установки на металлические столбы
Глубина ям зависит от того, какой грунт в месте установки столбов. Если почва каменистая, то достаточно будет и 70 см. Но если почва глинистая, глубина ям должна быть не меньше глубины промерзания грунта. В большинстве регионов средней полосы это 1,2 м.
Будьте внимательны
Опорные столбы из кирпича или камня
В этом случае размеры фундамента должны быть больше, чем сечение опорного столба. Обычно такие столбы делают в 1,5 кирпича, то есть 390х390 мм. Поэтому фундамент должен быть размером не меньше, чем 500х500 мм. Поскольку изготовить такие столбы для калитки из профнастила самому намного сложнее, этот вариант выбирается реже.
Сама по себе кирпичная кладка плохо выдерживает нагрузку на изгиб, поэтому для придания столбу дополнительной прочности в яму до заливки фундамента бетоном устанавливается металлическая труба. Вокруг нее и выполняется кладка из кирпича или камня. К этой же трубе привариваются металлические закладные, которые выводятся за пределы кладки. На них впоследствии и будет выполняться установка ворот и калитки из профнастила.

Классическая калитка из металлопрофиля – фото монтажа на столбах с помощью внешней рамы и закладных
Верхняя часть металлических опорных столбов должна быть закрыта заглушками для предотвращения попадания влаги внутрь столба. Если возле калитки планируется установка светильников, то до бетонирования столбов в них необходимо затянуть провод в гофрированной трубе.
Необходимые для работы инструменты

Инструменты для установки калитки
Для земляных работ используют штыковую лопату, лом. Переносят песок, щебень, цемент носилками или ведрами, замешивают в бетономешалке. Маленький объем смеси можно приготовить вручную в корыте, мешают совковыми лопатами. Для сваривания калитки из профиля нужна сварка, к ней покупают расходные материалы.
Другие инструменты:
- трамбовка для щебня, песка, электрический вибратор для бетона;
- болгарка с зачистным и отрезным кругом по металлу;
- электрический шуруповерт и дрель;
- уровень, угольник, отвес, рулетка 5 м, керн.
Углошлифовальной машиной (болгаркой) отрезают детали каркаса и диагоналей, с применением шлифовального круга зачищают сварные швы от окалины. В разных случаях могут потребоваться другие инструменты, например, топор, для рубки корней в земле.
Как приварить силовые петли к воротам
(фотографии, инструкция, видео мастер-класс)
Как приварить металлические силовые петли к каркасу распашных ворот своими руками?
Важным этапом установки металлических распашных ворот является закрепление силовых петлей на каркасе ворот и столбах забора. Многие полагают, что сделать это не так сложно.
Действительно, приварить петли легко, если учесть некоторые небольшие нюансы, поэтому сейчас я расскажу вам, как правильно приварить силовые петли к воротам.
Вам понадобятся (снимок 1):
- Электрод (любая достаточно толстая проволока);
- Сами петли;
- Закладные (в виде небольших металлических пластин);
Для начала, электрод необходимо согнуть так, как это показано на снимках 3-6. Затем, приложите согнутый электрод к петлям, чтобы сравнить их длины, как это показано на снимке 7. Если электрод намного длиннее петель, отпилите лишнее (восьмое фото), его длина должна быть максимум на 5 миллиметров больше длины петли. Затем загните тот 5-тимиллиметровый кусок электрода (снимок 9).
Положите согнутый электрод на металлическом каркасе забора и расположите на нём петлю. Под петлю кладутся закладные и прихватываются сваркой. Затем, одна закладная приваривается к каркасу ворот, а вторая к металлическому столбу.
Фото-инструкция перед вами!
Источник идеи и фотографий, видео мастер-класс: https://www.youtube.com/watch?v=tkeBgGQ3TacОригинальное название: Как правильно приварить петли., своими руками.”Броневик” Днепр.Автор видео: bronevik03
Изготовление распашных ворот – инструмент и материал
Убедившись, что можем изготовить их своими руками, приступим к строительству.
Требуемый инструмент для изготовления распашных ворот и расходный материал к нему.
Инструмент
Обязательный для изготовления каркаса и обустройства стоек:
- болгарка. Предназначена для резки и шлифовки металлических заготовок;
- нарезные диски;
- шлифовальные диски;
- сварочный аппарат;
- электроды;
- рулетка;
- строительный уровень;
- уголок;
- молоток;
- лопата;
- мастерок.
Вспомогательный:
- компрессор, краскопульт или кисточки для окрашивания стоек и/или ворот;
- дрель. Если понадобится для крепления обшивки ворот;
- клепатель, а также заклепки к нему.
Материал
труба для изготовления рамы. Предпочтительно использовать профильную трубу 60х40х1,5. Подойдет и 40х20х1,5. Окончательный выбор зависит от отделочного материала и учета ветровой нагрузки;
труба для изготовления стоек. Здесь также следует руководствоваться весом готовых ворот.
Общие рекомендации по выбору таковы:
- вес ворот в пределах 150 кг. и ниже. Подойдет труба 80х80х4;
- вес ворот от 150 кг до 300 кг. Труба – 10х100х5;
- вес ворот превышает 300 кг. Труба –140х104х5.
Совет: Для стоек может быть использовать кирпич, бетон или даже дерево. В любом случае соотносите свойства материала с предполагаемой нагрузкой.
петли для распашных ворот. Могут быть регулируемыми и нерегулируемыми. Должны быть изготовлены из качественного материала и обладать способностью выдерживать значительный груз;
замки. Могут быть механические и электромеханические. Выбор на усмотрение;
краска. Нужна для окраски стоек и/или обшивки;
обшивка. Здесь также полная свобода выбора. Главное, чтобы было вам по нраву и по карману;
автоматика для распашных ворот. Для возможности сделать автоматические ворота. Можно не устанавливать вообще или установить позже. Но, если ее установка предполагается, пусть и в отдаленном будущем – каркас распашных ворот лучше делать более прочным.
Схемы и чертежи распашных ворот из профнастила
В комплект проектной документации входят:
- Сборочные чертежи ворот из профнастила.
- Чертеж изготовления отдельных деталей.
- Подробная спецификация металлических профилей.
Небольшие легкие дачные ворота из профнастила можно изготовить и установить по эскизу ворот из профнастила без разработки специально для них всей проектной документации. Но сечение металлических профилей каркаса ворот и опорных столбов, а также конструкцию металлических цилиндрических петель лучше взять из типового проекта.
Для каркаса ворот из профнастила обычно используют трубчатые металлические профили минимальным сечением 40×20 мм, а максимальным — 60×40 мм. При этом выбор профиля зависит от ширины проема ворот, а также от того, будут ли створки ворот глухими или в одну из них встраивается калитка.
Петли для подвешивания ворот лучше выбрать с подшипниками. Это позволит воротам открываться легко и плавно, без применения для этого значительных усилий. Кроме того, такие петли можно смазывать гораздо реже, чем обычные.
Столбы для ворот из профнастила являются наиболее ответственной частью все конструкции ворот. Именно они должны выдерживать как ветровые нагрузки, так и нагрузку от собственного веса ворот. Поэтому для столбов лучше не использовать профильную трубу с сечением меньше, чем 80×80 мм, а для ворот, с размером проема больше 3.5 м, рекомендую изготовить столбы из трубы сечением 100×100 мм.
Даже если столбы ворот выполняются из кирпича, внутрь кладки устанавливается профильная труба одного из указанных выше сечений. Причем не менее, чем на 0,5 м она должна быть вмонтирована в бетонный фундамент, служащий основанием для кирпичной кладки. При этом закладные для установки петель ворот должны быть связаны с профильной трубой с помощью электросварки или надежного болтового соединения.
Читайте по теме:
Ворота из профнастила распашной конструкции
Если Вам нужны надежные, прочные и недорогие ворота из профнастила — то Вам подойдет классический распашной вариант. О том, как сделать и установить такие ворота читайте в статье.
Как установить ворота из профлиста?
Хотите знать, как правильно установить ворота из профнастила, чтобы они служили Вам долгие годы? Какой для них нужен фундамент? И каркас? Тогда читайте статью — в ней есть все, что Вам нужно.
Ворота из профнастила своими руками: чертежи и схемы
Любое строительство или изготовление конструкции невозможно без чертежа или хотя бы эскизного рисунка с чётко обозначенными размерами. Поэтому для изготовления ворот из профнастила своими руками чертежи, схемы просто необходимы, и без них никак не обойтись. Определившись с местом расположения объекта и произведя замеры, на листке бумаги, вспоминая школьные уроки черчения, следует нанести основные параметры будущей конструкции. За основу можно взять готовый проект ворот, который несложно найти в интернете и внести собственные изменения и размеры.
ФОТО: гаражные-ворота72.рфЭскиз конструкции простых распашных ворот с отдельно расположенной калиткой из профильной трубы
ФОТО: master-style.com.uaЭскизный проект ворот и калитки с двухсторонней обшивкой листами профнастила
ФОТО: roomester.ruЧертёж каркаса полотна откатных ворот

























































