Принцип работы пиролизного котла
Применительно к отопительным котлам пиролизом называется горение топлива при недостаточном количестве кислорода. При этом топливо выделяет большое количество газов, практически все из них горючие. Эти газы направляются в специальную камеру сгорания и дожига, куда подается вторичный воздух. Газовоздушная смесь вспыхивает, выделяя большое количество тепла. Тепловой энергии выделяется намного больше, чем можно извлечь при обычном горении дров или угля. Дело в том, что многие из образовавшихся при горении топлива летучих веществ, имеют очень высокую температуру сгорания. В результате, из того же количества топлива, пиролизные котлы извлекают больше тепла.
Из-за особенностей процесса горения (выделения большого количества газов) такие установки называют еще газогенераторными котлами.
Конструктивная особенность пиролизных котлов — топка, состоящая из двух камер. В одну закладывается топливо (часто это верхняя часть топки), в ней же происходит выделение газов, и потому эта часть называется камерой газогенарации. Через неширокую горловину газы попадают во вторую камеру — дожига. Тут перемешиваются с вторичным воздухом, вспыхивают и сгорают практически без остатка.

Пиролизный котел с нижней камерой дожига
В среднем КПД пиролизников — выше 85%. Есть модели, способные выдавать 92% и даже немного больше. Но данные показатели возможны только и исключительно при использовании сухого топлива. Его влажность должна быть 5-8%. При 40% содержании влаги горение может полностью затухнуть, а при 20% просто буде неэффективным. И это — один из главных недостатков этой технологии: дрова и уголь приходится предварительно сушить, например, сделав площадку возле дымовой трубы. Просто дрова, просушенные в дровнике не пойдут, как и уголь, взятый из кучи на улице.
В видео продемонстрирован котел, в котором камера дожига находится вверху. Хотя котлы такого типа имеют более простое строение (образовавшиеся газы сами поднимаются вверх), самодельщики предпочитают камеру с нижним располодением камеры дожига (как на фото выше).
Сборка
Необходимые инструменты и материалы
- сварной аппарат (постоянного тока);
- компактная и габаритная углошлифовальные машины (болгарки); если их нет, можно использовать электрический лобзик, но работа с ним усложнится;
- электродрель.
- отрезок трубы сечением 0,5 м и длиной 1,3 м, толщина ее стенок должна быть 3-4 миллиметра;
- отрезок трубы сечением 0,45 м и длиной 1,5 м, у нее толщина стенок может составлять 3 миллиметра;
- в случае если вы не сможете найти трубы такого диаметра, купите два листа стали размером 1,25х2,5 м и отдайте их в цех для проката, затем, сварив швы, превратите их в трубы;
- отрезок трубы сечением 60 мм и длиной 1,2 м;
- пара колец диаметром 0,5 м с полкой, ее ширина должна составлять 25 мм (их вырежьте из листовой стали либо согните из уголков размером 2,5х2,5 см);
- четыре навеса, две задвижки и две ручки;
- листовая сталь для дверец загрузочной камеры и зольника, два люка для них;
- два отреза швеллера под крыльчатку и ножки;
- листовой асбест для теплоизоляции дверец (так они не будут сильно греться, а тепловые потери снизятся);
- шнур из асбеста для герметизации дверок зольника и топочной камеры;
- 3-4 отрезных диска диаметром 12,5 см и два шлифовочных круга сечением 23 см;
- 3-4 упаковки сварочных электродов;
- дутьевой вентилятор;
- терморегулятор.
Пошаговая инструкция по сборке пиролизного котла
Корпус агрегата
Вложите трубу сечением 0,45 см в аналог диаметром 0,5 м. Скрепите их кольцом с полкой.
Из листовой стали вырежьте окружность сечением 0,45 м и наварите ее на дно меньшей трубы. Это будет корпус котла с закрепленным вокруг него контуром для нагрева воды шириной 25 мм.
Внизу заготовки вырежьте отверстие прямоугольной формы для дверки зольника. Его длина должна быть 15, а ширина 10 см. Приварите к нему люк. От листа металла отпилите кусок по размеру отверстия, приварите к нему петли, а затем поставьте дверцу на зольник. Оснастите ее задвижкой.
Вверху водяного контура прорежьте отверстие прямоугольной формы для закладки горючего. Его величина должна быть достаточной для удобной загрузки.
Приварите к отверстию загрузки люк. Вырежьте из листа стали дверку, наварите на нее петли и задвижку
Затем прикрепите к загрузочному отверстию.
Важно! Оптимальное решение — сделать дверцу двойной. Между кусками стали уложите листовой асбест, а по периметру уплотните заготовку асбестовым шнуром
Так вы понизите тепловые потери из агрегата.
Сделайте вверху корпуса котла отверстие и приварите к нему выходной патрубок. Через него продукты горения будут вытягиваться в дымоходную трубу.
Понизу и поверху водяного контура вварите штуцеры диаметром 4 см для подсоединения к отопительной системе. Предварительно нарежьте на них резьбу.
Подмыльте стыки сварки. Затем опрессуйте водяной контур устройства. Давление при этом должно быть не меньше 2 кг/кв.см. В ходе проверки проконтролируйте качественность швов.
распределитель воздуха
- Из листовой стали вырежьте окружность. Ее сечение должно быть меньше на 2 см, нежели внутренний диаметр корпуса (0,43 м). В середине круга сделайте отверстие по сечению распределительной трубы (57-60 мм).
- Вставьте воздуховод в дырку и приварите по периметру к диску.
- На низ круга приварите отрезки уголка в форме лопастей.
- На верхнюю сторону приделайте петлю. С ее помощью приспособление будет перемещаться вниз и вверх. Затем установите заслонку, ею можно будет регулировать поступление кислорода в топку.
- Из листовой стали вырежьте окружность сечением 0,5 м. В ее середине сделайте отверстие диаметром 70 мм. Вставьте воздушный распределитель в корпус. Его верхнюю сторону вденьте в отверстие и приварите крышку агрегата.
- Чтобы распределитель можно было перемещать, на его петле через блок зафиксируйте трос.
Классификация
Котлы имеют отличия по расположению камер для дожигания газов:
- с верхним расположением;
- с нижним расположением.
Котлы с верхней камерой более громоздкие, требуется больше материала для сборки дымоотвода. Зато чистить их придётся намного реже, ведь частицы от сгоревшего топлива не попадают в камеру для дожигания газов.
В котлах с нижним расположением секции топливо располагается в верхней части, а газы выводятся в нижнюю, и там догорают. Это удобно, но придётся часто удалять мелкие дровяные частицы из камеры утилизации газов.
По энергозависимости котлы бывают:
- без применения электричества: котлы с естественной тягой;
- с принудительной тягой.

Энергонезависимые котлы подразумевают включение в конструкцию высокого дымохода (не менее 5–6 метров) для увеличения тяги и обеспечения достаточного разрежения в отсеке сгорания.
Эффективность обогрева у таких котлов будет несколько ниже, чем у котлов с принудительной тягой.
Устройства с принудительным поддувом оснащаются одним или двумя вентиляторами, которые могут работать в режиме нагнетания воздуха или откачки сгоревших газов.
В некоторых моделях котлов применяется комбинированный способ с участием нагнетающих и отсасывающих газ устройств для увеличения мощности.
Справка! Механизмы, откачивающие отработанные газы, изготавливаются из особых жаропрочных (аустенитных) сплавов, их стоимость значительно выше, чем у нагнетающих вентиляторов.
По способу обогрева:
- Водяного обогрева — к теплообменнику котла подключаются водяные трубопроводы, по которым нагретая рабочая жидкость разносится по различным помещениям.
- Воздушного обогрева — вместо воды используется воздух, получающий тепло посредством того же теплообменника и распространяемый по воздухопроводам. Эффективность ниже, чем у водяного способа, применяется на производственных площадках, складах.

Фото 1. Пиролизный котел с теплообменником, предназначен для водяного обогрева, работает на дровах.
Чертеж: общий вид, рабочий процесс
Вариантов исполнения пиролизного котла много. Наипростейший вид по чертежу устроен таким образом.
- Камера сгорания котла.
- Отсек газификации.
- Секция дожигания газов.
- Колосниковые решётки.
- Теплообменник (входной/выходной патрубки).
- Трубопровод отвода газов (дымоход).
- Отверстия для поддува.
- Дверка в отсек для закладки топлива.

В котел могут быть включены температурные датчики и приборы для контроля и поддержания нормальных режимов работы.
А также аппаратная часть котла для автоматизации функционирования всего отопительного комплекса.
Суть происходящего внутри пиролизного котла характеризуется следующими процессами:
- Поток воздуха извне поступает в отсек газификации с находящимся там топливом.
- Некоторая часть кислорода будет поддерживать процесс горения (тления). Газы, являющиеся продуктами горения, через сопло попадают в камеру сгорания котла и там окисляются в присутствии вторичного кислорода, который поступает вместе с воздухом снаружи.
- Часть пиролизных газов восстанавливается при наличии углерода из топлива до угарного газа и окиси азота, потребляя при этом часть энергии. Смесь проходит в секцию дожигания газов и окисляется там с возвратом отнятой им энергии.

Фото 2. Чертеж пиролизного котла длительного горения, собранное по нему устройство может обогреть большой дом.
Участвующие в реакции пиролиза газовые смеси выводятся наружу через дымоход, минуя при этом теплообменник котла.
Внимание! Так как функционирование пиролизных котлов связано с большим количеством энергии, генерируемой внутри оборудования и возможном выделении разного рода вредных газов, осуществлять самостоятельную постройку котлов рекомендуется только при полном понимании всех физико-химических процессов, возникающих при его работе. Температурные фазы:
Температурные фазы:
- сушка, пиролиз древесины — 450 °C;
- сгорание древесного газа и вторичного воздуха — 560 °C;
- продувание пламени и возврат тепла — 1200 °C;
- отвод оставшихся продуктов горения — 160 °C.
Отличия устройства от обычных котлов

Включая древесину (дрова), специальные топливные брикеты (пеллеты) и отходы, получаемые на производстве. Одно из главных отличий котлов — применение различных видов твёрдого топлива, практически любого вещества, которое может гореть.
Длительность процесса сжигания топлива намного больше, чем у обычных котлов. От 8–10 часов и выше. Есть модели котлов с крупным отсеком для дров, продолжительность непрерывной работы — до 24 часов. Это значит, что пополнение камеры сгорания новыми порциями топлива осуществляется 1–2 раза в сутки.
Важно! За счёт того, что происходит почти полное разложение твёрдых материалов, пирокотлы менее вредны для окружающей среды
Как увеличить КПД пиролизной печи
В основном КПД Бубафони снижается из-за неравномерного нагрева ее корпуса; это приводит к ухудшению эффективности теплообмена прибора с окружающим пространством. Существует довольно простой способ оптимизации процесса с помощью гофрированного металлического листа. Из него изготовляется импровизированная рубашка для корпуса: ее фиксируют поверх баллона сваркой или скрутками.
Еще одним популярным вариантом увеличения эффективности пиролизной печи является котел Бубафоня с водяной рубашкой. Чаще всего водяной контур изготовляют из металлической бочки или ящика, заливая в них воду. Поместив внутрь изготовленной конструкции раскаленную Бубафоню, можно добиться нагревания воды и пустить ее внутрь отопительной системы. Таким образом удается обзавестись своеобразным бойлером для обогрева обширного помещения.
Создавая водяную рубашку, необходимо принять все необходимые меры, чтобы сделать ее максимально надежной. Если для этих целей используется ящик, он должен быть качественно проварен, во избежание протечек. Все швы желательно уплотнить термостойким герметиком. Рекомендуемая толщина стального листа для изготовления водяного контура – не менее 3 мм. Сверху ящик лучше всего закрыть крышкой с ручками. Печь Бубафоня длительного горения с водяной рубашкой может дополнительно оснащаться теплообменником, состоящим из тонких трубок.
Существует несколько полезных советов для более качественной и безопасной эксплуатации печи из газового баллона длительного горения:
- Установку прибора в помещении лучше всего проводить на лист металла.
- Пространство вокруг печи необходимо освободить от любых легковоспламеняющихся предметов.
- При розжиге топлива не рекомендуется злоупотреблять горючей жидкостью.
- Корпус изделия довольно сильно раскаляется, поэтому при обслуживании обогревателя необходимо облечься в толстые перчатки.
- Чтобы погасить пламя, закрывается заслонка на воздушной трубе.
- Красить детали Бубафони категорически запрещается.
Самодельная пиролизная печь из газового баллона — это один из самых популярных вариантов изготовления. Он подкупает своей дешевизной и простотой. Все материалы легко найдутся на любой даче.
Она не отопит большой дом, но вот для небольшой дачи, гаража, теплицы — самое то.
Такая печь легко справится с отоплением помещения в 100 м 2 . Часто используется для отопления теплиц, гаражей, складов. Не требует устройства фундамента, но основание все же нужно подготовить. Как минимум, выровнять и закрыть металлическим листом, толщиной не менее 4 мм.
Также важно при монтаже соблюдать все правила пожарной безопасности. Расстояние до сгораемых предметов не должно быть ближе 50 см. Деревянные поверхности дополнительно защищают несгораемым полотном
Деревянные поверхности дополнительно защищают несгораемым полотном.
Что такое пиролиз?
Пиролиз иногда называют «сухой перегонкой». Все дело в том, что твердое топливо при невысоких температурах (плюс 200-800 °C) и небольшом количестве кислорода не горит, хотя и выделяет тепло. При таких условиях топливо тлеет, выделяя пиролизный газ. Остается лишь твердый остаток, который носит название древесный кокс.
Так вот пиролизный газ, если смешать его с необходимым количеством кислорода, образует горючую смесь, при сгорании которой выделяется огромное количество тепловой энергии. На этом принципе и работают пиролизные котлы и печи.
Твердый кокс, оставшийся после выделения горючего газа, не остается без дела. Он продолжает тлеть, прогорая до конца. Так что в итоге остается только небольшое количество золы.
Как сделать пиролизный котёл своими руками
Технологический процесс изготовления котла пиролизного принципа действия включает выполнение слесарных и сварочных работ.
Необходимые материалы и инструмент
Для изготовления качественного агрегата необходим опыт в работе со следующими инструментами:
- аппарат электросварочный;
- дрель электрическая;
- угловая шлифмашина;
- набор слесарных инструментов — угольник, уровень.
Потребуются материалы и комплектующие:
- металл:
- листовой, толщина 4 мм, 7,5 м²;
- труба — 8 м (диаметр 57 мм, толщина стенки 3,5 мм);
- полоса сталь (толщина 4 мм, ширина 20 мм) — 7,5 мп;
- полоса сталь (толщина 4 мм, ширина 30 мм) — 1,5 мп;
- полоса сталь (толщина 5 мм, ширина 80 мм) — 1 мп;
- шамотный (огнеупорный) кирпич — 15 шт;
- профтруба 60×30 (толщина стенки 2 мм) — 1,5 мп;
- профтруба 80×40 (толщина стенки 2 мм) — 1 мп;
- круг отрезной d 230 — 10 шт.;
- круг шлифовальный d 125 — 5 шт.;
- электроды — 5 пачек;
- датчик температуры.
Им автоматически выполняются манипуляции с заслонкой: открытие (для увеличения температуры горения) и закрытие (при достижении температурой максимального значения)
Температурный датчик — это механическое устройство контроля количества воздуха, проходящего в камеру сгорания.
Продуктивность работы котла зависит от функционирования дымоотводящей трубы. Для обеспечения хорошей тяги дымоотвод должен соответствовать требованиям качества:
- высота не меньше 5 метров;
- хорошее утепление;
- отсутствие резких изгибов;
- отвод конденсата;
- простой доступ для чистки.
Чертежи и схемы устройства
Пиролизный котёл без принудительной вентиляции имеет наиболее простую схему. Энергонезависимость конструкции удешевляет эксплуатацию агрегата.
Схема пиролизного котла с естественным дымоотводом имеет вид:
Для повышения высокого КПД некоторые конструкции имеют двойные стенки основания
Котёл состоит из трёх основных камер:
- загрузочная, служащая для заброса топлива;
- камера дожига, куда подаётся вторичный воздух;
- теплообменник, выходящий в трубу.
Горение сырья направляет поток газа сверху вниз. При подаче воздуха под колосники в массив шамотного кирпича происходит дожиг горючих газов. Продукты распада уходят через теплообменник в дымоотвод. Регулировка тяги выполняется термодатчиком на выходе из котла с помощью цепочки, связанной с заслонкой подачи вторичного воздуха.
Подробную деталировку с размерами и допусками можно взять в стандартном чертеже:
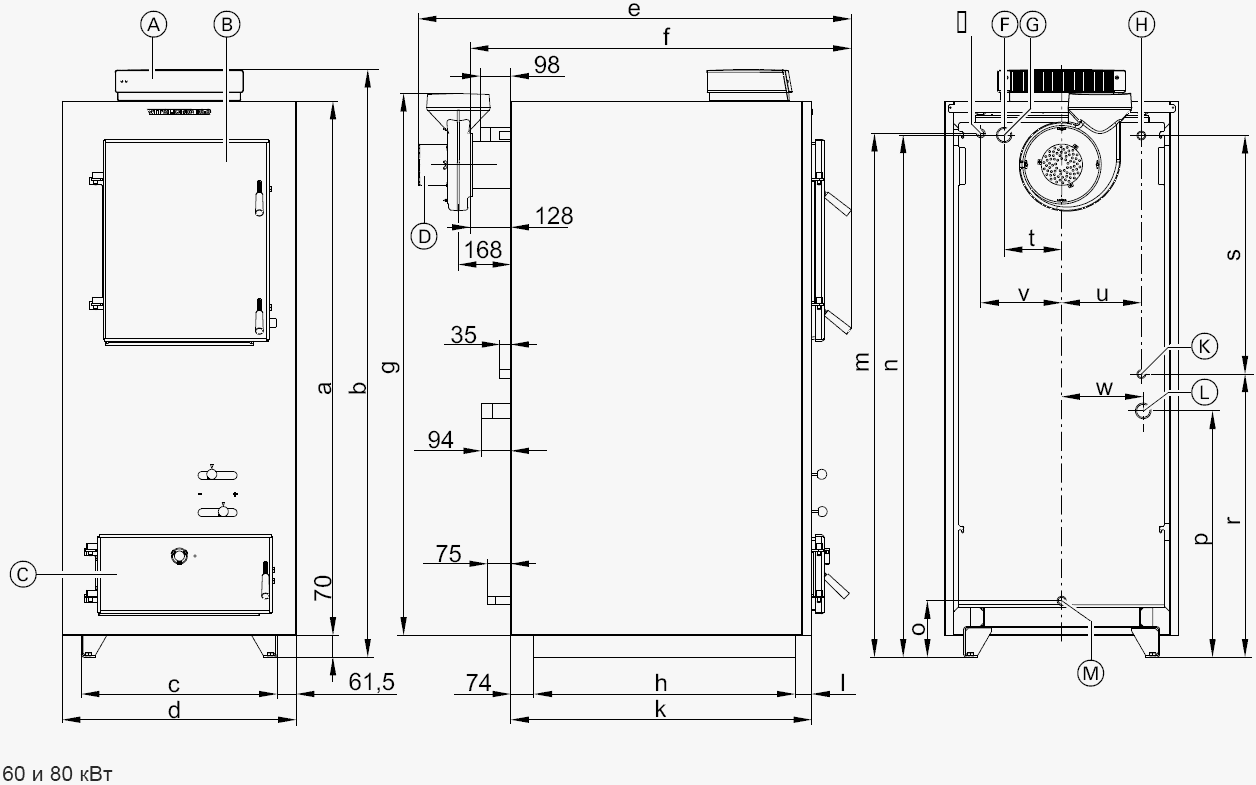
A — контроллер контура котла; B — дверца загрузки; C — крышка зольника; D — дымоотвод; E — муфта для датчика температурного предохранителя; F — патрубок предохранительного клапана; G — подающая магистраль контура; H — подвод холодной воды в теплообменник; L — обратная магистраль контура котла; M — расширительный бак
Пошаговая инструкция изготовления агрегата
Изготовления пиролизного котла своими руками разделяется на этапы:
- Согласно чертежу выполняется разметка и нарезка деталей для корпуса. После «прихватывания» элементов производится контрольный замер, затем делаются сварочные швы. Установленные на свои места задняя панель и боковые стенки свариваются с двух сторон, зачищаются, обрабатываются сварочным герметиком.
- Производится монтаж труб теплообменника.
- После наваривания внешней стенки и обечаек дверок устанавливается механический регулятор контроля теплоносителя.
- Дымоход собирается наращиванием трубы Последующую часть нужно вставлять внутрь предыдущей, чтобы конденсат не попадал на внешнюю сторону. Готовая конструкция окрашивается огнеупорной краской.
Создаём пиролизный котёл
Разбор схем и чертежей
Чтобы создать пиролизный котёл своими руками, важно тщательно изучить схемы и чертежи. Именно по ним вы сможете подобрать конструкцию и максимально точно определить количество нужных для строительства материалов. На схеме и чертеже пиролизного котла отображены основные элементы, без которых невозможно построить конструкцию своими руками:
На схеме и чертеже пиролизного котла отображены основные элементы, без которых невозможно построить конструкцию своими руками:
- регуляторы,
- дымовые каналы,
- отверстия для воздуха,
- трубы для подачи воды,
- трубы для отвода воды,
- камера сгорания,
- вентилятор.
Очень важно при изготовлении пиролизного котла своими руками придерживаться чертежей и схем. Дело в том, что это сложное устройство, в котором будут происходить высокотемпературные процессы. Поэтому малейшая ошибка может обратиться аварийной ситуацией
Поэтому малейшая ошибка может обратиться аварийной ситуацией.
Для частного дома будет достаточно пиролизного котла, мощность которого составляет 40 кВт. Не стоит стремиться к большой мощности. Дело в том, что в таком случае конструкция становится значительно сложнее. Мало того, конечная стоимость также увеличивается.
Выбор мощности пиролизного котла, который вы собираетесь создать, влияет на размер ключевых деталей на чертеже или схеме. От правильного подбора размеров зависит нормальное функционирование устройства.
Совет. Если вы владелец маленького домика, то можно остановить свой выбор на котле с мощностью в 30 кВт. Этого будет более чем достаточно.
Инструменты, необходимые для изготовления котла своими руками
Чтобы своими руками сделать конструкцию, работающую на основе пиролизной реакции по чертежам и схемам, необходимо запастись некоторым инвентарём. Для воплощения задумки в жизнь, вам понадобятся следующие материалы и инструменты:
- болгарка,
- сварочный аппарат,
- шлифовальные круги,
- электрическая дрель,
- электроды,
- трубы различного диаметра,
- полосы стали,
- термодатчик,
- вентилятор,
- металлические листы.
Это базовый набор, который необходим, чтобы создать пиролизную систему своими руками по схемам и чертежам. Конечно же, в процессе работы может возникнуть необходимость в дополнительных инструментах и материалах.
Внимание. Толщина стали для корпуса должна быть 3 мм, а лучше 4
Тонкости сборки
После того как вы выберите подходящую схему, можно будет приступить к сборке. При этом необходимо придерживаться следующих рекомендаций:
Отверстие, через которое в топку будут попадать дрова и брикеты должно располагаться немного выше, чем у обычных твердотопливных конструкций. Не забудьте про ограничитель. Его главная задача — это контролировать количество воздуха. Для его создания нужна семидесятимиллиметровая труба в сечении. Её длина должна быть больше корпуса. К ограничителю приваривается диск. Элемент должен быть выполнен из стали. Место приваривания — низ конструкции. В результате у вас получится зазор в 40 мм. Чтобы установка ограничителя стала возможной необходимо сделать дырки в соответствующих местах крышки. Лучшей формой для отверстия, через которое будут загружаться дрова является прямоугольник
При этом важно не забыть о дверце. Она должна иметь специальную накладку для лучшей фиксации
Также в конструкции необходимо предусмотреть отверстие, через которое будет удаляться зола. Трубу для теплоносителя нужно сделать с изгибом
Это позволит повысить отдачу тепла.
Ещё одним важным элементом согласно любой схеме и чертежу является вентиль. С его помощью вы сможете контролировать количество теплоносителя, поступающего внутрь. Поэтому лучше всего расположить его в удобном и легкодоступном месте. Сам алгоритм создания пиролизного котла своими руками по чертежам вы можете увидеть на видео внизу.
После сборки огромное значение имеет первый запуск. Лишь после того, как вы убедитесь, что в продуктах горения нет угарного газа, можно будет утверждать, что всё сделано правильно. Для этого лучше использовать специальное оборудование.
Создать котёл, работающий на основе принципа пиролиза можно своими руками. Но перед тем как начать работу необходимо написать проект. Основную роль в нём будет играть рисунок со схемой изделия и размерами.
Обсудить статью на форуме
Сооружение основания
Основание под печку Бубафоня закладывается таким образом:
- Первым делом выкапывается квадратная яма. Ее примерные размеры – 150х150 см, при глубине 20-30 см.
- Дно траншеи засыпается подушкой из щебня и заливается раствором бетона. Для выравнивания его поверхности пригодится мастерок. Когда залитый участок схватится, необходимо проверить горизонтальность его поверхности при помощи строительного уровня. Если нужно, проводится дополнительная корректировка.
- Поверх полностью высохшей бетонной подставки укладывается огнеупорный кирпич в несколько рядов. Обычно достаточно 2-3 слоев.
Продукты реакции
В результате переработки резиновых отходов происходит выделение нескольких видов продукции:
- Топливо жидкой формы.
- Остаток, содержащий углерод.
- Газ при пиролизе.
- Металлическая армирующая проволока.
Жидкость
Жидкий остаток, по сути, представляет собой синтетическую нефть, схожую по своему составу с природной. При обработке полученного сырья на нефтеперерабатывающих заводах возможно получить такие виды материалов, как бензин, мазут, а также синтетическое масло для автомобильной техники.
Во многих странах такой способ утилизации нашел широкое применение, из огромного числа автошин производят дизельное топливо. С одной тонны шин в результате пиролиза получают 500 л топлива. Жидкий остаток можно применять без обработки для печей и котлов в качестве основного топлива.
Углеродсодержащий остаток
Твердый остаток нашел широкое применение в некоторых областях:
- Он аналогичен активированному углю по своим абсорбентным свойствам.
- Как черный краситель в лакокрасочном и цементном производстве.
- Как сырье для изготовления новых резиновых изделий, а также покрышек.
- Добавляется в жидкое топливо, либо сжигается сам в специальных печах.
Пиролизный газ
Пиролиз покрышек производится с выделением газа, который по своим характеристикам схож с природным. Большая часть данного газа в результате горения в печи разделяется на жидкие фракции, а также невыпадающие в осадок остатки, которые поддерживают разложение резины.
Металлический корд
Металлическая проволока при воздействии высокой температуры не подвержена разложению и остается в практически неизменном виде. Сердечник автомобильных шин производится из качественной стали, которая при дальнейшей переплавке находит свою вторую жизнь
Установка оборудования
На следующем этапе необходимо провести установку оборудования на штатное место. Помните, что собранный своими руками пиролизный котел обладает просто адским весом – не вздумайте двигать его самостоятельно. Возьмите в помощники 3-4 человека и затащите остывший агрегат в помещение, выделенное под котельную. Далее проводим следующие работы:
- Выводим дымоход наружу и подключаем его к пиролизному котлу;
- Подключаем отопительную систему к котлу;
- Устанавливаем группу безопасности и проверяем герметичность системы;
- Проводим в помещение электрическую розетку;
- Устанавливаем котловую автоматику и подключаем к ней дутьевой вентилятор.
Теперь можно приступать к тестированию системы – делается это по аналогии с вышеуказанной инструкцией. Настройка пиролизного котла сводится к установке оптимальной температуры теплоносителя. Подробную информацию по этому вопросу можно получить в инструкции к используемому вами управляющему контроллеру.

Футеровка шамотным кирпичом позволяет соблюдать требуемый температурный режим и защищает металл.
Контроллер работает следующим образом – с помощью температурного датчика он контролирует температуру теплоносителя на выходе из пиролизного котла. Как только температура достигнет заданного уровня, электроника остановит работу вентилятора. Горение горючих газов замедлится и практически полностью остановится – дрова не погаснут, они будут просто медленно тлеть. Как только температура в контуре упадет, вентилятор включится, а горение в пиролизной камере возобновится.
Требования противопожарной безопасности
При установке пиролизного котла нужно учитывать не только необходимость его размещения на твердом основании, но и требования противопожарной безопасности. Несоблюдение общепринятых рекомендаций способно привести не только к серьезным штрафным санкциям, но и к появлению прямой угрозы безопасности жильцов.
Для установки котла нужно выделить отдельную котельную. Непосредственно установка агрегата, как отмечалось, выполняется на индивидуальном фундаменте. Перед топочными камерами нужно уложить лист металла. Толщина этого элемента должна составлять порядка 2-3 мм. Котел нельзя устанавливать на расстоянии менее 20-30 см от стен, мебели и прочих предметов.
Котельное помещение стоит в обязательном порядке оснастить качественной вентиляцией. Отверстия для проветривания должны иметь площадь от 100 см2
Процесс горения требует постоянного притока свежего воздуха, поэтому вопросу вентилирования котельной следует уделить особое внимание. Дымовую трубу следует утеплить. Для этого хорошо подойдет фольгированный минераловатный утеплитель
Без теплоизоляции на стенках дымохода начнет появляться конденсат и оседать деготь, что приведет к снижению срока службы дымоотводящей конструкции
Дымовую трубу следует утеплить. Для этого хорошо подойдет фольгированный минераловатный утеплитель. Без теплоизоляции на стенках дымохода начнет появляться конденсат и оседать деготь, что приведет к снижению срока службы дымоотводящей конструкции.
Таким образом, в самостоятельной сборке пиролизного котла нет ничего сложного. Следуйте инструкции, помните о полученных рекомендациях и все получится.
Удачной работы!
Как происходит сборка конструкции с водяной рубашкой
Изготовления дымохода осуществляется в следующей поочередности операций:
- Аккуратно разрезают баллон в верхней части. Из получившегося в результате этого колпака впоследствии изготовляется крышка для котла.
- Дно баллона оснащается самодельными ножками. Каждую из них перед фиксацией необходимо выставить точно по уровню.

Поршень конструируется в три этапа:
- Вырезается стальной круг: в поперечном сечении он должен уступать внутреннему диаметру баллона примерно 35-45 мм. Благодаря боковым зазорам пиролизные газы без помех будут просачиваться во вторичную камеру. По центру круга выполняется отверстие под воздуховод: эта труба должна вставляться в него достаточно плотно.
- Далее проводится сварка друг с другом металлического круга и трубы.
- Поверх поршневого основания приваривается кусок швеллера.
Для изготовления крышки печи можно использовать верхнюю срезанную часть баллона. На ее поверхности наносится разметка под трубу воздуховода с закрепленным подающим поршнем. При этом необходимо предусмотреть определенный запас для свободного перемещения трубы. По нанесенным линиям производится вырезание. Сбоку самодельная крышка оформляется ручками, для чего используются согнутая в тисках арматура. Теперь можно приступать к установке дымохода вверху импровизированной пиролизной печи. При помощи болгарки делается вырез под заготовку трубы: для скрепления деталей также используется сварка.
На этом основная часть работ по сооружении Бубафони считается оконченной: ее можно запускать в эксплуатацию. Установить печь желательно на заранее обустроенный фундамент.
Плюсы и минусы
Преимущества и недостатки такого оборудования, сведенные здесь в одну таблицу, позволят вам более объективно подойти к оценке возможного приобретения.
За и против пиролизных котлов
| За | Против |
| Это так называемые котлы длительного горения: можно загрузить партию дров, которые будут гореть очень долго, около 12 часов (на угле при определенных условиях и еще дольше) | Но за это придется платить кровными. Эти котлы определенно дороже традиционных твердотопливных. Иногда разница в цене составляет 50–100 % |
| Топливо сгорает практически полностью, а это значит, что мы используем большую часть его энергетического потенциала. К тому же это минимизирует количество отходов и избавляет от частой чистки котла | Используется система принудительного нагнетания воздуха, а это значит, что котел энергозависим, то есть потенциальные перебои электричества превращаются в большую проблему |
| В качестве топлива могут использоваться крупные дрова. В большинстве случаев можно ограничиваться закладкой неколотого топлива | Эффективность работы котла во многом зависит от влажности дров. Обычное требование – влажность не должна превышать 25 % |
В видео ниже представлено еще одно мнение. Не стоит его рассматривать как истину в последней инстанции, но задуматься над отдельными вопросами определенно нужно.
А вот еще одно видео от того же ярого противника пиролизных котлов. Некоторые доводы звучат вполне убедительно, но ко многим нужно относиться критически.
Как видите, эксплуатация такого оборудования может иметь некоторые нюансы. В любом случае перед покупкой котла желательно дополнительно ознакомиться с различными предложениями заводов-изготовителей, благо оных на сегодняшний день немало.
Основные элементы
Для примера возьмем готовую схему котла Беляева с мощностью 40 кВт. Она содержит следующие основные элементы:
- Контроллер для контура котла.
- Дверца, предназначенная для загрузки топлива.
- Крышка зольника.
- Дымосос.
- Муфта для датчика предохранителя температуры.
- Патрубок для аварийной линии.
- Подающая магистраль.
- Подвод в защитный теплообменник холодной воды.
- Подвод в защитный теплообменник горячей воды.
- Обратная магистраль.
- Патрубок опорожнения и расширительный бак.
Безусловно, имея опыт и некоторые инженерные познания, можно без проблем изменить конструкцию котла. Схема подключения пиролизного котла может видоизменяться на ваше усмотрение. Однако работы выполнять нужно таким образом, чтобы не нарушать размеры внутренней камеры.
Установка и эксплуатация агрегата
Требования к монтажу отопительного оборудования и меры безопасности
- Отопительное устройство следует поставить в специально отведенной для него нежилой комнате (котельной).
- Агрегат надо монтировать на фундамент из бетона либо кирпичей.
- Перед котлом следует положить листовую сталь. Ее толщина должна быть не меньше 2 мм.
- Между отопительным устройством и любыми предметами или оборудованием должен быть промежуток не меньше 30 см.
- В котельной должна быть устроена эффективная приточная вентиляционная система, т.к. для горения постоянно нужен свежий воздух.
Очень желательно теплоизолировать дымоход фольгированной каменной ватой. Если этого не сделать, при охлаждении продуктов горения на стенках трубы будет оседать деготь и конденсат.
Какое топливо можно использовать
- бурым, черным углем или антрацитом;
- торфяными брикетами;
- древесным углем;
- сухими опилками;
- горючим мусором;
- брикетами из отходов деревообработки;
- топливными гранулами из прессованных опилок (пеллеты).

Использование агрегата
- Поднимите распределитель воздуха.
- Откройте дверку загрузочной камеры и плотно загрузите топливо.
- Сбрызните его горючим составом.
- Закройте дверцу.
- Опустите воздушный распределитель.
- Отворите заслонку.
- Сбросьте по воздушной трубе горящую лучину.
- Как только начнется горение топлива, затворите заслонку.

























































