Советы по установке

Прежде чем устанавливать тумбу под посудомоечную машину, нужно правильно определить место.
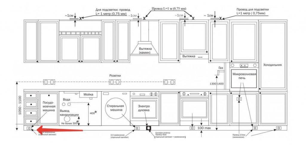
- Рядом должна располагаться розетка (оптимальная высота от пола 45-50 см) с заземлением.
- Слив должен быть поблизости (максимальная длина сливного шланга до 150 см).
- Водопровод рядом (для удобства подключения воды).
Чтобы максимально исключить ошибки, которые совершают покупатели при установке шкафа и монтаже посудомойки, достаточно учесть ряд полезных рекомендаций опытных мастеров.
- На задней панели тумбы необходимо сделать специальные отверстия для электрического кабеля, водопроводного и сливного шланга.
- Надежно закрепить тумбу посредством стяжек с соседними тумбами мебельного гарнитура.
- Фиксируем металлизированную защитную пленку (если в мебельной конструкции не предусмотрен специальный защитный слой).
Установка шкафа для посудомоечного агрегата выполнена, теперь за считаные минуты можно выполнить монтаж прибора, который состоит из нескольких шагов.
- Складывание ножек посудомойки.
- Установка конструкции в шкаф.
- Протягивание водопроводного/сливного шланга и электропровода в предварительно подготовленные отверстия.
- Подкручивание ножек посудомойки. Это следует выполнять до момента, когда посудомоечная машина плотно соприкоснется с верхней частью шкафа.
- Подключение машины к водопроводу, сливу и электросети.
Во избежание нежелательных вибраций, во время работы посудомойку можно зафиксировать с помощью металлических уголков к верху тумбы.
Основные нюансы установки
Некоторые встраиваемые модели являют собой дополнительную секцию кухонного гарнитура. Они оснащены колесиками и с легкостью задвигаются в нишу под столешницей после подключения к электросети и коммуникациям.
В основном, встраиваемые посудомоечные машины имеют фиксированные габариты:
Для того чтобы посудомойку можно было встроить без изменения размеров и формы мебели, производители встраиваемых моделей отнимают от типичных размеров несколько миллиметров. Короба под встраиваемую технику также выпускаются с небольшим запасом. В комплектации со всей техникой поставляется элементарная инструкция по ее установке своими руками.

Некоторые схемы установки посудомоек включают в себя специальные шаблоны, по которым сверлятся отверстия для навешивания декоративных дверей короба. Модуль управления электроприбора при этом располагается в торцевой части «родной» дверцы агрегата. Как правило, все стационарные бытовые электроприборы оснащены ножками с регулируемой высотой, что позволяет плотно подогнать машину к коробу и правильно выставить горизонт. Для более жесткой фиксации некоторые модели посудомоек включают в себя крепежные уголки, которыми агрегат крепится к коробу при помощи самонарезающих винтов.
Подготовка и монтаж коммуникаций
Перед тем как установить встроенную посудомоечную машину, нужно обеспечить надежную подачу воды и электроэнергии. Для этого существует два основных способа: скрытый и открытый монтаж.
Для этого согласно намеченной разметке делают отверстия в перекрытиях. Заложенные в них коммуникации цементируются. Данный способ хорош тем, что провода и отдельные детали не бросаются в глаза, кухня приобретает более аккуратный внешний вид.
Но есть и недостатки: в случае аварии, прорыва трубы, придется заново штробить стены для замены или ремонта.
Открытый монтаж коммуникаций выполняется проще и быстрее. Этот способ подходит для тех, кто искал ответ на вопрос «Как установить посудомоечную машину в готовую кухню?».
Если строительство и ремонт давно завершены, можете прокладывать кабели и шланги, спрятав их в специальные пластиковые короба. Еще один плюс такого способа заключается в легкой доступности коммуникаций.
В случае непредвиденной поломки достаточно отодвинуть шкафы модульной кухни и произвести необходимый ремонт.
Подводим воду
Эта часть наиболее трудоемка в исполнении, требует значительно больше времени, нежели подключение других коммуникаций. Перед тем как подсоединить посудомоечную машину, перекройте воду. Дальше нужно следовать следующему алгоритму.
- Найдите место, в котором гибкий шланг смесителя раковины соединяется с металлопластиковой трубой.
- Разомкните эти две части.
- Возьмите заранее купленный сантехнический тройник. На резьбу намотайте ФУМ ленту.
- Соедините тройник с металлопластиковой трубой.
- В верхней части закрепите гибкий шланг смесителя, предварительно обмотав резьбу ФУМ лентой.
- К оставшемуся отводу подсоедините фильтр тонкой очистки. На него зафиксируйте запорный кран.
- Гибким шлангом соедините получившуюся конструкцию с посудомоечной машиной.
- Включите подачу водоснабжения.
Обратите внимание, что в случае несовпадения диаметров труб и шлангов, потребуются отдельные переходники. ПММ требуют подключения только системы холодного водоснабжения
Во-первых: сама техника имеет множество разных программ со своим температурным режимом, под который нагревает воду.
Во-вторых: при использовании ГВС объем потребляемой электроэнергии может увеличиться. К тому же для некоторых моделей забор горячей воды и вовсе запрещено.
Еще один вопрос, который многих интересует: «Как правильно встроить посудомоечную машину, если нет централизованного водоснабжения?». Для этого предварительно выполните установку накопительного бака с чистой водой.
Если вы производите монтаж на даче, можно данную емкость поместить на чердаке. Для большинства ПММ достаточно давления 0,1 МПа. Чтобы его создать, нужно разместить бачок на высоте 2-3 метров.
Подводим слив
Этот этап намного проще предыдущего. Достаточно установить новый сифон с отдельным патрубком под кухонной раковиной. К нему подсоединяется сливной контур. При этом учитываются два важных требования.
- Сливной контур должен врезаться в сифон под углом. В этом случае большая часть воды будет уходить самотеком.
- В месте подключения контура нужно дополнительно создать небольшой перегиб, чтобы предотвратить забор воды из раковины.
При дальнем расположении ПММ от источника воды придется устанавливать еще один тройник. От него пойдет шланг к сифону под раковиной.
Подключаем электричество
ПММ относятся к высокомощной встраиваемой технике. Это значит, что перед тем как установить посудомоечную машину самостоятельно, позаботьтесь о том, чтобы проводка в квартире выдержала предстоящих нагрузок.
Большое внимание в этом вопросе уделяется сечению медных токопроводящих жил. Оно должны быть не меньше 2 мм
Для понимания точной величины воспользуйтесь специальными формулами расчета сечений или проконсультируйтесь с опытным электриком.
Посудомойка подключается к розетке, находящейся рядом, с напряжением не меньше 16 А. Помните о необходимости установки заземляющего контакта. Он предусматривается электриками в розетках.
Важное условие: не допускается подключать к одному источнику питания посудомоечную и стиральную машину. Это приведет к высоким перегрузкам, что может стать причиной короткого замыкания
Встраиваем посудомоечную машину в мебель

Перед завершающим этапом монтажа проверьте правильность подключения коммуникаций. Для этого проведите тестовый запуск ПММ с моющим средством. В случае обнаружения течей и других недочетов вы сможете быстро устранить дефекты.
Отрегулируйте высоту посудомойки с помощью ножек. Используйте уровень, чтобы вся техника смогла образовать единую линию.
Установка в корпус
Монтаж будет простым и удобным, если в проекте кухонной мебели предусмотрена ниша для посудомоечной машины. Однако, так происходит не всегда. Если вы давно покупали кухонный гарнитур и не желаете его полностью менять, освободите один из шкафов.
Как правило, модульная мебель изготавливается по типовым размерам. В таких гарнитурах напольные шкафы в большинстве случаев соответствуют габаритам ПММ.
Уберите все направляющие для ящиков и петли, снимите дверцы и заднюю стенку. Для установки встраиваемой посудомойки от шкафа должна остаться столешница и его боковина.
Так как большинство предметов мебели изготавливается из плит ДСП, их нужно защитить от пара и тепла, которые может генерировать ПММ. Для этого обклейте внутреннюю часть шкафа специальной герметизирующей пленкой.
Аккуратно задвиньте посудомойку в предусмотренное для нее место. При этом следите, чтобы шланги и провода коммуникаций не загибались, не переламывались. Между стеной и самой машинкой нужно оставить свободными 5 см, которые помогут обеспечить вентиляцию.
В завершение смонтируйте специальные крепления, идущие в комплекте к посудомойке. Они снизят уровень вибрации во время работы ПММ. Для этого воспользуйтесь прилагающейся инструкцией производителя.
Изоляция столешницы
Если верхняя часть мебели выполнена из МДФ, искусственного или натурального камня, то можно быть уверенным, что влага и пар ей не страшны. Древесностружечные плиты (ДСП) нуждаются в защите и изоляции.
Для этого во многих моделях ПММ в комплекте поставляется специальный металлический тонкий лист, который накладывается между верхней частью машинки и столешницей.
Совет! Обеспечить пароизоляцию и защитить ДСП можно с помощью плотной фольги.
Фасад
Этот элемент можно дополнительно заказать на той же фабрике, где вы покупали кухонный гарнитур. В некоторых случаях удается приспособить на роль фасада и дверцы разобранного шкафа.
Лицевая панель крепится только на саморезы. Использование клея, даже очень стойкого, нежелательно. Он, вероятнее всего, из-за постоянных перепадов температурного режима придет в негодность и лишится своих свойств или, напротив, схватиться так, что заменить фасад уже будет невозможно.
Особенности монтажа посудомоечной машины
Если посудомойка устанавливается отдельно, то для нее можно выделить немного места на полу или же на каком-нибудь из столов. В противном случае, если агрегат может встраиваться, то придется пожертвовать одним из шкафов. Однако, встраиваемая техника не перегружает интерьер кухни техническими деталями и вообще незаметна, скрываясь за одним из фасадов.
Многие производители прилагают подробную инструкцию, как подключить посудомоечную машину к коммуникациям.
Выбор места
Место размещения техники зависит от ее типа.
Посудомойки бывают двух видов: широкие и узкие. Первые имеют ширину чуть менее 60 см, а вторые – 45 см. Естественно, что для малогабаритной кухни узкий вариант смотрится более предпочтительным. Но не забывайте и про другие параметры – высоту и глубину. Часто гарнитуры, выполненные на заказ, могут отличаться от стандартов высотой столешницы и глубиной шкафов. Поэтому на данном этапе необходимо быть предельно внимательным, ведь маленькая погрешность всего в 1 см может сделать установку устройства невозможной.
Компактную посудомойку можно встроить в нишу, спрятать в одном из модулей либо просто поставить на столешницу.
Возможно использовать сразу 2 мебельных блока, правда, тогда придется решать вопрос как закрепить посудомоечную машину между шкафами.
Стоит отметить, что существуют и более компактные модели, отличающиеся высотой. Как правило, такие варианты рекомендуется встраивать в мебельные модули, расположенные не на полу, а выше – вторым рядом.
Чтобы подключение не вызвало проблем, необходимо учитывать близость выходов воды, канализации и электрических розеток.
Что нужно для установки
При выборе места расположения посудомоечного агрегата надо учитывать, где именно проходят на вашей кухне сантехнические трубы и есть электрические розетки. Если электрический провод в принципе не сложно провести от розетки до любого места на кухне, то с подводом воды и канализационных труб могут возникнуть большие сложности, особенно если кухня давно отремонтирована и установлен гарнитур. Именно поэтому в первую очередь необходимо рассматривать варианты установки машины по соседству с мойкой.
Если машина стоит дальше от водопроводного стояка, то она будет дольше набирать и сливать воду, шланги будут больше нагружаться.
Можно ли ставить посудомоечную машину рядом с духовым шкафом

Планируя пространство в небольшой кухне, хозяева стараются, чтобы каждый сантиметр помещения принес пользу. Подчас это невероятно сложно, но многим это удается. В погоне за необходимостью вместить в маленькую кухню побольше полезной техники, люди забывают о том, что некоторые бытовые приборы не могут безболезненно соседствовать друг с другом. Именно поэтому и возник вопрос, на который мы сегодня хотим ответить, а именно: можно ли помещать посудомоечную машину рядом с духовым шкафом и как это может повлиять на эти два прибора? Будем разбираться.
Что говорит производитель?
А что нам говорит производитель посудомоечных машин? Можно ли ставить такую технику вплотную к духовым шкафам? В отношении установки посудомоечной техники есть ряд правил, нарушение которых может повлечь утрату гарантии.
- Недопустимо помещать посудомойку под раковину или вплотную к раковине.
- Нельзя помещать посудомойку под варочную поверхность.
Имеется в виду любая варочная поверхность, даже та, что внизу имеет теплоизоляционную подложку.
- Нельзя устанавливать посудомойку в крайний ящик мебельного гарнитура.
- Недопустимо помещать посудомоечную машину в непосредственной близости от духового шкафа.
Последнее правило очень четко отвечает на наш вопрос. Оно означает, что духовка над посудомойкой, под ней, по краям от нее размещаться не должна. Необходимый технологический зазор, который будет разделять эти предметы бытовой техники должен составлять не меньше 40 см.
Не все производители указывают, что между посудомойкой и духовкой расстояние должно быть именно 40 см, но например педантичные немцы прописали именно такое расстояние
Так что если вы имели неосторожность поставить посудомоечную машину Бош рядом с плитой, то попрощайтесь с гарантией
Мастера сервисного центра, в случае чего, вам такую вольность не спустят.
Условия соседства бытовой техники
Правила есть правила и против них «не попрешь». Но нужно учитывать и тот факт, что соблюдать эти правила можно только имея помещение нормальных размеров. Если ваша кухня по размерам напоминает «коморку папы Карло», то о соблюдении подобных правил можно забыть, поскольку взять эти 40 см неоткуда. Что делать? Тут два варианта действовать по правилам и отказаться от установки посудомоечной машины, либо нарушить эти правила и установить вместе духовой шкаф и машинку.
Если пойти на риск, то чем это потенциально может обернуться кроме потери гарантии? Разогретая духовка будет длительное время воздействовать на корпус посудомоечной машины, вызывая перегрев электронной начинки и высушивая уплотнительные резинки, которые со временем потрескаются и придут в негодность. По статистике в такой ситуации риск поломки посудомоечного агрегата возрастает в 1,5 раза
Но стоит принять некоторые меры предосторожности и такие риски можно свести к минимуму
- Если есть возможность оставить зазор между духовым шкафом и посудомойкой хотя-бы полсантиметра, это нужно сделать. Пропихните в зазор небольшой кусок фольгированного пенополиэтилена, и вы надежно изолируете два бытовых прибора друг от друга.
- Если пришлось поставить плиту и посудомойку вплотную друг к другу в одном шкафу пенале, не включайте два прибора одновременно. Разогретая духовка способна спровоцировать короткое замыкание в электронных схемах посудомойки, если та будет работать.
- Если еще есть возможность выбрать посудомоечную машину или духовой шкаф, берите модель с хорошей изоляцией. Основная задача снизить нагрев стенок обоих приборов стоящих вплотную.
Минусы
Как бы ни хвалили посудомоечную машину производители и покупатели, у нее есть несколько очевидных и объективных недостатков, с которыми не все смогут смириться.
- Занимает место. У большинства россиян площадь кухни не превышает 10 кв.м, и даже маленькая посудомойка создаст дополнительные проблемы с хранением и ее рациональным размещением.
- Нужно накапливать посуду, чтобы обеспечить полную загрузку. В данном случае есть две обратные стороны. В маленькой семье для полной загрузки иногда приходиться копить с утра до вечера, а ее грязный вид может раздражать. С другой стороны – если семья большая, то полную загрузку можно обеспечить уже после одного приема пищи. Решением в этой ситуации также может быть покупка ПМ с возможностью половинной загрузки. Такая функция позволяет экономить воду: при половинной загрузке будет использовано такое количество воды, которое необходимо для помывки имеющегося объема грязной посуды. Без этой функции ПМ тратит воду вне зависимости от количества загруженных в камеру предметов.
- Не всё можно мыть в ПМ. Деревянные, алюминиевые, медные предметы, тонкое стекло, хрусталь, старинную посуду с росписью, чувствительной к сильно горячей воде рекомендуется мыть традиционным способом, чтобы не испортить.
- Плохо отмывает сложные загрязнения, нагар на кастрюлях, сковородах, противнях.
- Перед запуском техники сё равно нужно потратить время, чтобы счистить с тарелок остатки еды.
- Требует регулярного ухода.
- Требует использования специальных средств для мытья и смягчения воды.
- Дополнительные финансовые затраты. Возможно, конкретно в вашей случае посудомойка окупится за счет меньшего расхода воды. Но на начальном этапе придется заплатить даже за самую дешевую маленькую модель от 13 тысяч рублей.

Соль
Нужна для смягчения воды и защиты прибора от накипи, предотвращает появление известкового налета где-то в глубине машинки. Использовала соль разных марок, разницы не заметила, поэтому беру Somat, она дешевле остальных. Засыпать нужно в круглый отсек внизу, открутив крышку.
Засыпается примерно раз в месяц, когда соль будет заканчиваться, на панели загорится соответствующий индикатор. Упаковки весом 1,5 кг хватает примерно на полгода. В среднем цена не выше 200 рублей.
Таблетки
Собственно само моющее средство, необходимое для очищения посуды. Поделюсь лайфхаком для таких же компактных машинок, как у меня. Берем таблетку и разрезаем её пополам, эффект тот же. Расскажу, какие пробовала:
- 3 в 1 от Finish, крутые, но дороговатые. И из-за жидкого центра её неудобно поделить на 2 части. 13 таблеток – 350 рублей. Существует много разновидностей, ну и конечно чем больше пачка, тем дешевле получается цена за одну штуку.
- Somat, хорошие, функцию свою выполняют. Только каждая штучка упакована в плёнку, которую нужно предварительно удалить, что немного крадёт время. Средняя стоимость — 600 рублей за 24 таблетки.
- Meine Liebe, мне немного странным показался запах, но они недорогие. Если дополнительно использовать ополаскиватель, то отлично подойдут. Стоят 460 рублей за 21 штуку.
- BioMio, довольно неплохие и самые бюджетные. Радует надпись экологичные, но что это значит – вопрос. 430 рублей за 30 таблеток.
- Ушастый нянь, зашли нам лучше всего, состав самый безвредный из всех, а цена около 300 руб. за 20 штучек.
Ополаскиватель
Необязательный пункт, но с ним не остаются разводы на стеклянных бокалах и запах приятнее, чем просто от использования таблеток. Я беру Finish объёмом 800 мл, в магазинах последнее время его не наблюдаю, поэтому заказываю на сайте Беру за 340 рублей.
Можно оформить доставку курьера, привезёт прямо до квартиры. Если заказывать дополнительные товары, то курьер обходится относительно недорого. Или всегда можно обойтись бесплатным самовывозом. Обычно доставка занимает 1-2 дня.
Заливать ополаскиватель приходится раз в 2 месяца. Как и в случае с солью, на панели загорается индикатор, когда запасы кончаются.
Плюсы и минусы устройств
Преимущества таких посудомоек в данном случае очевидны:
- Не встраиваемая посудомойка может быть расположена в месте, которое владелец сочтет наиболее подходящим. Она не испортит общий вид и сможет стать ярким дополнением интерьера.
- В случае, когда совершенно нет желания изменять кухонный гарнитур, или он уже полностью установлен, отдельно стоящая посудомойка станет самым оптимальным способом укомплектовать кухню необходимым устройством.
Кроме того, прибор обладает и другими положительными сторонами:
- Во время поломок посудомоечную машину этого типа гораздо легче диагностировать. Не возникнет проблем с демонтажем и перемещением по комнате, прибор легко сдвигается с места.
- Стоимость отдельно стоящей машины для мытья посуды на 20% ниже, чем у прочих приборов. Одно это обстоятельство уже способно создать серьезную конкуренцию.

Передняя панель машины
Конечно же, при создании чудо приборов не обошлось и без недостатков:
Главный негативный момент скрыт в преимуществе свободного размещения
Покупателю придется провести немало времени в раздумьях относительно расположения прибора, ведь важно поставить его таким образом, чтобы он не мешался под ногами и всегда был под рукой.
Основная часть таких посудомоек не укомплектована хорошей системой звукопоглощения и теплоизоляции. Первое время прибор будет доставлять неудобства шумом, издаваемым во время работы
Для многих людей это может стать серьезным недостатком.
Подключение встраиваемой посудомоечной машины
Многие работы можно сделать самому. Но есть такие, которые должны выполнять специалисты, обладающие опытом и разрешением на их проведение. Это касается работ, связанных с электричеством: проведение кабеля и установка розетки.
Установка на подготовленное место
Перед тем как установить посудомоечную машину в готовую кухню, надо убедиться, что удастся без труда уместить ее в подготовленное место, а сбоку либо сзади останется участок для шлангов. Сначала технику ставят напротив подготовленного отделения. Шланги, которые в нее вмонтированы, через отверстия протягивают к месту канализации и водоснабжения, а шнур питания – к розетке. Далее устанавливают прибор в выбранное место, перед этим следует удостовериться, что длины шлангов и шнура достаточно.
Установку выполняют согласно прилагаемой пошаговой инструкции конкретной модели. Также можно почитать форумы и посмотреть видео. Последовательно закрепляют детали, входящие в комплект:
- наклеивают парозащитную пленку;
- по краям фиксируют герметизационную ленту;
- монтируют демпферные элементы.
Если корпус посудомоечной машины расположен неровно, исправляют, регулируя высоту ножек. Некоторые производители техники, например, Электролюкс, Бош и другие, к набору прилагают шумовую защиту, которую надо закрепить на нижней части. В конце дверцу аппарата закрывают фасадом или специальной декоративной накладкой. Подгоняют лицевые части и укрепляют, используя саморезы.
Подключение электрического питания

Нельзя протягивать сетевой фильтр, поэтому прибор подключают к самой близкой точке питания. Шнур имеет стандартную длину – примерно 1.5 м, поэтому и розетка должна располагаться не дальше этого расстояния. Применять удлинители нельзя, потому что они не смогут выдержать нагрузки, оплавятся. Запрещается использовать общие розетки, в которые включены другие приборы. Лучше всего для посудомойки отвести отдельную точку, применять заземленные розетки с отдельным пакетником. Последний служит для защиты от замыканий и перегрузки сети. Сооружать электроточку на близком расстоянии от пола нельзя, если случится затопление, произойдет короткое замыкание. Расстояние от пола до того места, где расположена машина, должно быть больше 25 см.
Подключение к канализации

Чтобы ПММ сливала использованную воду, ее подсоединяют к канализационной системе. Существует несколько методов. Первый способ – подсоединить к системе слива мойки. При невозможности закрепить шланг напрямую к канализационной трубе, его монтируют именно таким образом. В этом случае необходимо поменять сифон, поэтому вариант считается затратным и трудоемким.
Другой метод очень простой. Он заключается в монтаже шланга от посудомоечной машины к манжете отвода канализационной трубы. Для фиксации используют специальную ленту, которая обеспечивает отличную герметизацию. Этот метод применяют, если под раковиной есть свободное отверстие.
Соединение с водопроводом

Большинство моделей можно подсоединять к горячей воде, но специалисты не советуют этого делать, потому что она не отличается хорошим качеством. Это отрицательно скажется как на здоровье людей, так и на самом приборе, который быстрее выйдет из строя. Перед подключением к водопроводу на стояке перекрывают воду. Для вмонтирования тройника откручивают шланг смесителя. Смеситель устанавливают к одному из входов разветвителя, к другому – очищающий фильтр. Монтируют шаровой кран запорного типа. К крану подсоединяют шланг, который идет от посудомойки. Стыки заматывают специальной лентой. Она препятствует протеканию воды.
Монтаж «фасада»

Лицевую сторону встраиваемой посудомоечной машины обязательно прикрывают панелью. Что касается фасада, он должен быть выполнен в соответствии с дизайном комнаты. В комплект к такой бытовой технике поставляют специальный фиксаторный элемент и лекало, которые необходимы для установки панели. Ее в основном изготавливают на заказ. Работу по монтажу фасада можно легко выполнить самостоятельно. Берут бумажный лист, на нем отмечают все нужные места и зоны, где предстоит установить фиксаторы. Этот макет прикладывают к передней дверце, делают разметку декоративной панели. Необходимые места намечают, используя обычное шило.
Затем бумажный лист снимают, сверлят отверстия под саморезы. В положенных местах устанавливают ручку фронтальной дверцы и фиксаторы. Данное руководство подходит для установки фасадов фронтальных частей любых размеров. После того как панель будет собрана, ее ставят на место. На дверце посудомойки фиксируют декоративный элемент и вкручивают подготовленные саморезы.
Что необходимо делать, чтобы посудомоечная машина не сломалась раньше времени?
Срок службы посудомоечной машины должен указываться в инструкции по эксплуатации, рассказал АиФ.ru руководитель органа по сертификации бытовой техники «Тестбэт» Олег Драницкий. «Если он не указан, то это 10 лет по закону „О защите прав потребителей“, статья 7», — добавил эксперт. Для того чтобы посудомоечная машина не вышла из строя раньше этого времени, эксперт советует придерживаться ряда правил.
Очищайте посуду от остатков пищи перед загрузкой
Прежде чем отправить посуду в машину, ее необходимо подготовить. Для этого стоит очистить тарелки, столовые приборы и другие предметы от остатков пищи. «Это касается только крупных загрязнений — больших твердых кусков пищи. Они могут забить фильтр, и придется его чистить. А могут даже остановить слив, и машина заполнится водой. Но технически продвинутая машина, скорее всего, остановится и покажет номер ошибки», — пояснил Драницкий. При этом предварительно ополаскивать посуду не нужно, достаточно сбросить с нее мусор, подчеркнул он.

Главные по тарелочкам. Рейтинг посудомоечных машин Подробнее
Правильно мойте резиновые прокладки на дверях машины
«Прокладки мыть нужно, если на них заметная грязь, чтобы не размножались микроорганизмы», — отметил Олег Драницкий. Для этого можно использовать любое моющее средство или, если это возможно, просто воду.
Некоторые хозяйки рекомендуют мыть прокладки раствором уксуса или лимонной кислоты, однако эксперт не рекомендует использовать такие «народные» рецепты. «Кислоты использовать не советую — могут разъесть резину, и она растрескается», — пояснил он.
Регулярно включайте машину
Посудомоечную машину необходимо использовать регулярно. «Каждый день — нормально, она для этого и сделана. Можно и чаще, ничего с ней не случиться. Простой для нее хуже — начинают пересыхать прокладки, шланги и другие детали», — рассказал Драницкий. По его словам, если посудомоечная машина простаивает без дела, раз в месяц можно ее запускать на обычном режиме со стандартной «таблеткой».
Также не стоит бояться перегрузки. «Посудомоечную машину перегрузить невозможно, это не стиральная. Больше одной тарелки в ячейку не загрузишь, а пока посуда равномерно размещается в корзинах, перегрузка не возникнет», — пояснил эксперт.

Как избавиться от старой техники в квартире? Подробнее
Используйте специальное моющее средство
Попытка включить машину с моющим средством, предназначенным для ручного мытья посуды, может привести к ее поломке. Поэтому в данном случае использование специального средства обязательно. При этом выбор конкретной марки или формы моющего средства на срок службы техники практически не влияет, считает эксперт. «Сейчас в продаже много хороших средств. Наиболее удобны таблетки — две в одном, три в одном, пять в одном и т. д. Они содержат и соль, и моющее средство, и ополаскиватель», — отметил он.
Полновстраиваемая ПММ: отличия

Полновстраиваемая машинка требует установки в кухонный гарнитур. Сверху она накрывается столешницей, а дверца скрывается за фасадом, выполненным в той же фактурной и цветовой гамме, что и мебель.
При закрытой дверце не будет даже намека на то, что на вашей кухне есть посудомойка — это главное отличие машины с возможностью встраивания от отдельностоящей.
Посудомойки отличаются такими положительными моментами:
- поддерживают целостность дизайнерского решения в помещении;
- защищены от нажатия детьми;
- тише работают в сравнении с отдельной ПММ, судя по отзывам пользователей.
Единственный недостаток техники с полноценным встраиванием в том, что она обязательно должна быть установлена в нишу — ее нельзя поставить отдельно, так как на ней нет декоративных панелей. Если не навесить на нее фасад, могут возникнуть проблемы с открытием или закрытием дверцы.
На заметку! При схожих заявленных характеристиках, полностью встроенные машинки несколько дороже остальных моделей (даже в пределах одного бренда).
Обычно габариты полновстраиваемых машин такие (соотношение ширины, глубины и высоты):
- 55х45х59 см — компактные модели, вмещающие до 6 комплектов посуды;
- 45х60х82 см — узкие машинки с объемом до 11 комплектов;
- 60х60х82 см — полноразмерные ПММ, отмывают за цикл до 17 комплектов.
Bosch SMV 50T10 RU
Полногабаритная модель от немецкого концерна Bosch: рассчитана на 13 посудных комплектов, с расходом воды в 12 литров на один цикл. Пользователю доступны 5 программ, функция предварительного ополаскивания. Предусмотрен полный тип защиты от протечки.
Шумность не превышает 48 дБ. Ширина 60 см, глубина 55 см, высота 82 см. Стоимость начинается от 44 558 рублей.
Bosch SPV 53M 20RU
Еще одна обладательница классической немецкой сборки «Бош». Вмещает до 9 посудных наборов. В ней также есть 5 моечных циклов и предусмотрен полный тип защиты от протечки. Узнать об окончании режима можно с удобной функцией луча на полу.
Низкая шумность, отмеченная на уровне всего 46 дБ, позволит комфортно использовать технику в темное время суток. Это узкая посудомойка: шириной 45 см, глубиной и высотой 57 и 82 см, соответственно. Стоимость от 29 730 рублей.
Flavia CI 55 HAVANA
Компактная техника на 6 наборов посуды с 7 программами и защитой от протечек частичного типа. Расход воды: 7 литров за одну мойку. Есть дисплей. Уровень шума выше комфортных значений: 52 дБ. Предусмотрена сушка конденсационного типа.
В комплекте идут такие аксессуары, как держатель фужеров. Габариты: 55х50х45 см. Средняя рыночная стоимость в пределах 16 000 рублей.
Выводы и полезное видео по теме
Видеоинструкции помогают не только представить, но и увидеть процесс монтажа во всех подробностях. Предлагаем несколько примеров самостоятельной установки фасада для посудомойки.
Последовательность действий на видео с полезными комментариями:
Монтаж панели от гарнитура ИКЕА:
Тестирование установленного фасада:
Монтаж декоративной панели для маскировки посудомоечной машины – простая процедура, не требующая специальных умений. Однако действовать нужно очень аккуратно и умело, иначе можно испортить накладку.
Если вы не уверены в своих силах, пригласите для установки опытного мебельщика – он справится с монтажными работами за 15 минут.
Еще несколько лет назад посудомоечная машина считалась предметом роскоши, и не каждая хозяйка могла себе ее позволить. Сегодня эта техника стала гораздо доступнее, и многие женщины, желая ее приобрести, столкнулись с проблемой ее размещения. Ведь ранее поставленные кухонные гарнитуры не предусматривают специального места под ПММ. А полностью менять кухню очень накладно. Приходится освобождать один из шкафов для монтажа встроенной посудомойки. При том нужно учесть несколько важных нюансов.

Встраиваемая посудомойка в интерьере

























































