Этапы возведения своими руками
Сделать теплицу своими руками очень просто, нужно лишь следовать последовательной инструкции:
- Для устройства основания теплицы нужно разрезать арматуру на 4 части. Должно получиться 36 одинаковых отрезков длиной по 75 см. Для крепления труб понадобится 34 куска арматуры. Два из них разрезать пополам, в результате чего получается 4 прута длиной 37,5 см.
Далее из досок размером 2х6 см нужно сделать основание теплицы прямоугольной формы размером 3,7х9,8 м. Доски сбить гвоздями или скрутить саморезами. Установить основание на участок. Проверить ровность углов (90°), внутри каждого из них забить по отрезку арматуры (37,5 см) для крепления конструкции.
34 куска арматуры забить на одинаковом расстоянии друг от друга (примерно 1 метр) вдоль длинных сторон основания. Делать это нужно таким образом, чтобы длина прутьев на поверхности была около 35–40 см.
На вбитые с двух сторон пруты арматуры надеть поочерёдно трубы ПВХ, сгибая их в правильную дугу. Должен получиться практически готовый каркас теплицы.
Металлическими пластинками закрепить трубы к деревянному основанию. Для этого используются саморезы и шуруповёрт.
Для того чтобы сделать торцевую часть теплицы, необходимо сделать каркас из брусьев. Установить их в каркас конструкции, закрепить шурупами.
Из бруса ножовкой выпилить 4 отрезка по 70 см. Один конец каждого из них запилить под углом в 45°. Они необходимы для укрепления торцов теплицы. Скрепить каркас боковой части с основой.
После того как каркас собран, необходимо сделать вверху конструкции ребро жёсткости. Для этого специальным пластиковым соединителем скрепить 2 трубы, обрезать лишнее таким образом, чтобы получилась общая длина 9,8 м. Сверху каркаса в центре прикрепить трубу пластиковыми стяжками к каждой из 17 дуг.
Накрыть каркас из труб плотной полиэтиленовой плёнкой с нахлестом в нижней части. Затем по одной из длинных сторон прочно закрепить её с помощью отрезков деревянных реек.
Натянуть её с небольшим усилием на каркасе, закрепить с другой стороны. Начинать делать это лучше с центра, а затем переходить к торцам.
По торцевым частям каркаса плёнку нужно натянуть хорошо вниз. Прибить её к основанию деревянными рейками. В том месте, где будет находиться дверь, нужно вырезать квадрат, оставляя припуски по 5–10 см для крепления каркаса. Завернуть аккуратно плёнку за проём, закрепить гвоздями или саморезами внутри теплицы.
Перед тем как устанавливать двери, необходимо тщательно проверить реальные размеры проёма, чтобы она точно подошла по размерам. Для её устройства нужно напилить бруски сечением 2х4 см разных размеров (по 4 штуки длиной 1,5 м и 1,2 м). Сбить из них две рамы, по диагонали зафиксировать брус для большей жёсткости конструкции. К проёму саморезами прикрутить дверные петли.
Оставшуюся плёнку можно использовать для дверей. Для этого натянуть её на два каркаса, затем также прикрепить деревянными рейками. Прикрутить ручки и петли. Надеть двери на подготовленные крепления, проверить ровность установки, чтобы не было перекосов и больших щелей.
Второй вариант устройства торцов теплицы
Есть и другой способ изготовления торцов конструкции:
При необходимости можно сделать торцевые части теплицы из древесных листов OSB, ОСП, ДСП или ДВП. Деревянный каркас остаётся таким же. Перед покрытием конструкции полиэтиленом необходимо вырезать из листов детали соответствующих размеров.
Снизу закрепить листы к деревянному основанию саморезами или гвоздями. Отрезки поролона или другого мягкого материала длиной 6 метров использовать в качестве покрытия для торцов.
Натянуть полиэтилен на теплицу, но без припусков по бокам. Закрепить его рейками. Установить двери.
Материалы и общие рекомендации по изготовлению
Для проведения работ понадобится запастись некоторыми отдельными инструментами, для создания вешалки для вещей, которую предполагается мастерить. В общем, в список входят:
- лобзик;
- ножовка;
- паяльник;
- наждачка;
- шуруповерт или молоток;
- шило;
- измерительная рулетка.
Чтобы сделать классическую вешалку, не требуется много времени или усилий. Конструкция начинается с планирования и схематичного чертежа, чтобы исключить ошибки в работе. Лобзик используют для заготовок. Из деревянного листа вырезают требуемую форму по контуру. Края также можно обработать. Затем заготовке придают вид.
Совет!
Чтобы обжечь доску можно использовать паяльник, либо газовую горелку.
После, детали покрывают краской или лаком. В навесном способе создания, делают «ушки» – маленькие круглые металлические вставки. Просверливают отверстия, чтобы закрепить шурупы в дюбели. Существует и альтернативный способ, который заключается в монтаже сквозных отверстий. Их используют для крепления конструкции на стену через них. В завершение процесса присоединяют крючки для одежды. Их можно расположить рядами или хаотично.
Детали и работа
Набор деталей полностью зависит от дизайна, который вы выбрали ранее. Самую обычную вешалку на стену можно сделать при помощи простой доски и нескольких винтов, может гвоздей.

Примитивную конструкцию нужно прикрепить к стене, и вот – вешалка готова. Вариант простой, но больше подойдет для амбара, нежели для квартиры.

Раз уж мы делаем настенную вешалку в прихожую нашего дома, то и выглядеть она должна подобающим образом. Возьмем предыдущий вариант и подключим немного творческого воображения.


- Полки для обуви своими руками: обзор лучших идей и пошаговое описание как построить обувную полку (85 фото и видео)
Кресло мешок своими руками — подробный мастер-класс как сшить правильно удобное кресло (75 фото)
Сундук своими руками — как сделать из коробки, бумаги и дерева красивую и стильную поделку (80 фото)
Дальше нужно решить вопрос с крючками. Мы можем пойти в магазин и купить готовый вариант, благо почти все они достаточно дешевые, или же сделать что-то самостоятельно.

Если с первым случаем все понятно, то во втором снова включаем фантазию. Берем достаточно простые, но длинные болты. Теперь в доске дрелью нужно сделать небольшие отверстия, которые будут по диаметру чуть меньше, чем наш болт – туда мы будем вкручивать импровизированные крючки.

Далее нужно покрасить болты в интересный вам цвет, что во многом зависит от того, красили ли вы доску.

С доской, покрытой лаком, отлично будут сочетаться окрашенный матовой черной краской болты. Размешать их можно не в один уровень, а достаточно хаотично. В итоге вы получаете оригинальную настенную вешалку ручной работы.
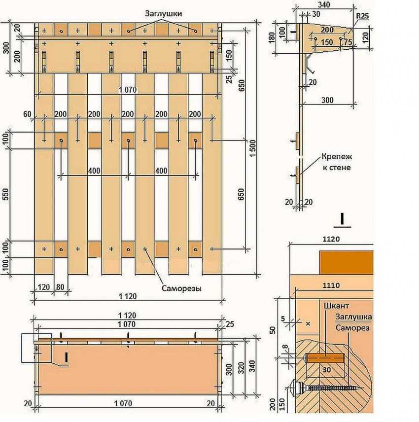
Материалы для изготовления

Схема сборки.
Вешалка в прихожую своими руками может быть произведена из различных материалов. Самыми распространенными являются доски, фанера, бруски или обрезки.
Для производства могут применяться древесные плиты, для красивого внешнего вида лучше взять с ламинированной поверхностью. Вообще, дерево отлично подходит для подобных конструкций, отлично смотрится в любом интерьере.
Можно придумать достаточно необычный тип вешалки. Если в квартире стоит старый торшер, то его можно использовать для конструкции напольного типа.
Для этого нужно снять торшер с креплениями под лампу, а оставшуюся часть выкрасить в подходящий цвет
При этом важно не забыть к верхней части присоединить металлические крючки
Вешалка в прихожей — это очень важный предмет интерьера. Она должны быть большой и удобной, ее можно приобрести в мебельном магазине, а можно сделать самостоятельно.
Статья по теме: Скользящая петля крючком для начинающих со схемами и видео

Чертеж напольной вешалки.
Лучше использовать природные материалы, они экологически безопасны и имеют красивый внешний вид. Идеально использовать дерево, оно легко поддается обработке.
В качестве крючков можно использовать самые необычные предметы. Например, к необычному варианту относят использование чайных ложек, согнутых пополам, или вилок из алюминия, в любом случае широкая часть должна использоваться в качестве крючков.
Неплохой идеей является в качестве крючков использовать толстую проволоку, которую можно украсить разнообразными декоративными элементами, в качестве которых применяют бисер или бусины.
Поделки из полипропиленовых труб для дачи
Идея 1. Поделки из труб ПВХ в виде дачного стула
Самое главное, что нужно учесть при конструировании дачной мебели: чем больше полипропиленовых труб будет входить в конструкцию стула или садового шезлонга — тем больший вес он будет способен выдержать. Если нужен стульчик для ребенка, достаточно минимального количества труб ПВХ, а сиденье для стула можно сделать из плотной ткани. Дачный шезлонг своими руками для взрослого лучше полностью сделать из пластика.
Идея 2. Цветочное вертикальное озеленение сада из пропиленовых труб
Если у вас есть неказистые, некрасивые стены на загородном участке, будь то баня, или сарай, их можно украсить при помощи вертикального озеленения, выполненного из полиэтиленовых труб для канализации. Полипропиленовые трубы с отверстиями, заглушки, закрывающие их боковые части, и металлический крепеж — это всё, что понадобится для изготовления подвесной дачной клумбы. Здесь хорошо выращивать те же цветы, что можно сажать на балконе в ящиках — петунии, виолы, пеларгонии, бархатцы.
Идея 3. Бортик для детской кроватки
Идея не совсем дачная, но ее оценят те, у кого есть маленькие дети. Чтобы ребенок ночью не упал с кровати, сделайте поделки из ПВХ труб своими руками в виде бортика для детской кроватки.
Идея 4. Поделки из труб в виде подставки винных бокалов
Великолепная идея для создания дачного бара. В полипропиленовой трубе делается прорезь по ширине ножки бокала, сверху прикручиваются ножки-держатели, за которые конструкция крепится к потолку.
Из труб ПВХ на даче можно сделать классную подставку для вилок, ножей и ложек. Стильно и со вкусом, не правда ли?
Идея 6. Вертикальные грядки из труб ПВХ для дачи
Сказочное место для дружеских посиделок и одновременно вертикальные грядки можно сделать из пластиковых труб. Такая оригинальная беседка наверняка станет любимым местом дачного отдыха. Делается она просто:
- Вкопайте трубы для основы беседки.
- Укрепите крышу в виде скатов, сделайте несколько поперечных полок, на которые посадите вьющиеся растения, например, пучковые огурцы.
Когда они подрастут — в беседке будет приятно находиться даже в солнечный день. Чтобы беседка смотрелась живописнее, используйте полипропиленовые трубы коричневого цвета.
Идея 7. Садовые качели для детей своими руками
Пластиковые трубы, в которые продеты веревки, удерживающие качели, станут удобными поручнями. Схема изготовления таких дачных качелей довольно проста. Восемь отрезков труб с отверстиями, веревка и доска — это всё, что понадобится.
Идея 8. Поделки из полипропиленовых труб своими руками для собаки
Вот интересный пошаговый мастер-класс по изготовлению дворового душа для собак. Сегодня же подкину мужу эту идейку для Рекса!
Автор этого приспособления долгое время испытывал трудности с тем, чтобы искупать своего пса. При кратковременном выключении воды собака убегала, а шланг пугал ее до смерти, так что приходилось как-то выкручиваться, а это отнимало уйму времени и сил. Купать собаку в собственной ванне отважится не каждый. А вот создать такой душ из простых пластиковых труб под силу даже неумехе.
Для этой оригинальной поделки из пластиковых труб своими руками понадобится:
- 12 м полипропиленовой трубы подходящего сечения
- 8 угловых тройников
- 3 тройника под углом 90°
- шарнирный переходник с трубы на шланг
- гибкий шланг для подвода воды
- металлический хомут для фиксации шланга
- ножовка по металлу
- отвертка
- строительная рулетка
- дрель со сверлом для проделывания отверстий в трубе
Как делать поделки из пропиленовых труб
Начните с подготовки деталей. Разметьте полипропиленовую трубу на такие отрезки: по 79 см — 8 деталей, по 101,5 см — 3 детали и по одной детали 100 см, 93 см, 6 см и 4,5 см. Отрежьте детали с помощью ножовки по металлу.
Отмерьте нужную длину гибкого шланга для подвода воды к душу и подготовьте отрезок необходимого размера. Затем приступайте к предварительной сборке конструкции.
Соберите боковые рамы из отрезков по 79 см, используя угловые тройники. Также соедините их между собой длинными отрезками труб по 101,5 см.
Четвертый отрезок разбит на две детали: 93 и 6 см. Между ними будет располагаться врезка для подвода гибкого шланга.
Для сверления отверстий воспользуйтесь сверлильным станком. Подберите подходящий размер сверла. Если в водопроводной системе пониженный напор воды, лучше использовать сверло поменьше.
Прежде чем использовать душ — протестируйте его. Включите подачу воды и проверь все соединения на прочность
Особое внимание стоит уделить металлическому переходнику с трубы на шланг. Здесь возможна утечка, если при соединении деталей не был использован силиконовый герметик
Стойка из медных труб для тремпелей
Изделия из меди всегда имеют достойный вид. Поэтому мобильная вешалка из медных труб на деревянной подставке не только решит проблему размещения одежды, но станет элегантной и удобной деталью вашей квартиры. Такую конструкцию можно расположить в гардеробной, а при случае легко переместить в свой холл или прихожую перед прибытием гостей.
Данный проект демонстрирует, как сделать своими руками более простой вариант медной вешалки без полки и колесиков. Усовершенствовать эту простую конструкцию вы сможете самостоятельно, используя доску, дополнительные крепления, винты и 4 мебельных поворотных колеса.
Подготовительный этап
Подготовьте материалы для вешалки и инструменты, которые помогут в работе:
- 2 трубы из меди длиной 300 см, диаметром 2,5-3 см.
- 4 поворотные (на 90 градусов) детали такого же диаметра.
- 2 Т-образные детали с диаметром отверстий в 2,5-3 см.
- 2 медные заглушки подходящего размера.
- Эпоксидный клей.
- Рулетка, карандаш.

Перед тем как сделать из подготовленного материала вешалку-стойку, необходимо из медной трубы нарезать детали нужного размера:
- 2 детали для вертикальных стоек длиной по 150 см. Эта высота расположения вещей является наиболее универсальной. Она не слишком высокая, ею удобно пользоваться и в то же время такого размера достаточно, чтобы повесить длинный плащ или платье.
- 2 детали длиной по 100 см. Первая станет перекладиной, на которую вы непосредственно будете вешать вещи, а вторая – частью опорной рамы.
- 4 детали по 25 см для конструирования горизонтальной опоры вешалки.
Если раскрой медной трубы вы не можете выполнить самостоятельно, позаботьтесь об этом заранее. Можно заказать нарезку трубы в месте ее приобретения или в специализированной мастерской.
Подготовьте рабочее место для сборки деталей. Оно должно быть максимально ровным и чистым.
Порядок выполнения работы
- Сборку вешалки-стойки нужно начать с формирования основания. Сначала в противоположные отверстия Т-образных соединений будем вставлять небольшие трубки длиной по 25 см каждая. Перед тем как выполнить соединение, нанесите немного эпоксидного клея на концы трубок. Клей сделает конструкцию более прочной.

Внимание! Если вы не уверены в правильности выполняемых действий, рекомендуем сначала собрать изделие насухо. Убедиться, что оно устойчиво, все детали установлены правильно
А потом разобрать и скрепить все заново с клеем. После нанесения состава сразу придавайте деталям правильное расположение.
- На свободный конец одной из трубок каждого полученного соединения наденьте по медной заглушке. Используйте эпоксидный клей.
- На второй конец установите по поворотной детали.
- Затем к поворотным деталям присоедините медную трубку длиной 100 см. Проследите, чтобы после этого свободное отверстие Т-образной детали было направлено четко вертикально. Таким образом, сборка опорной части вешалки завершена.
- В свободные Т-образные детали основания вставьте трубы-стойки размером по 150 см. Откорректируйте их положение к полу 90 градусов.
- К верхним концам вертикальных стоек присоедините поворотные соединения так, чтобы свободные отверстия были направлены друг к другу.
- Установите метровую трубу в эти отверстия. Она послужит крепким основанием для тремпелей с вашими любимыми вещами.
https://youtube.com/watch?v=clKZcTXe6XY
Читайте далее:

Как своими руками сделать полезные предметы мебели из полипропиленовых труб

Как сделать своими руками красивые и полезные полки из труб ПВХ

Креативная идея для дома: кресло из труб своими руками
Вешалка из пластиковых труб за 15 минут
Для изготовления конструкции потребуется подготовить следующее:
Трубы ПВХ длиной 1,8 метра и диаметром 20 миллиметров – 4 штуки.
Заглушки – 8 штук. Они устанавливаются на концах труб с каждой стороны.
Прочный тканевый шнур. Он понадобится для того, чтобы связать трубы между собой. Для таких целей можно использовать кожаные ремни (в зависимости от дизайна интерьера, куда планируется поставить вешалку). Главное, чтобы шнур надежно фиксировал конструкцию.
Песок, который понадобится для наполнения труб.
Краска для пластика
Здесь важно учитывать, что не каждая краска подойдет для окрашивания подобных поверхностей – подбирайте быстросохнущие и не едкие варианты.
Клейкая лента. Потребуется в том случае, если планируется красить участки труб в разные цвета.
Процесс изготовления вешалки: пошаговая инструкция
Шаг первый: для начала необходимо надеть заглушки с каждой из сторон труб, затем осторожно засыпать в полость нужное количество песка. После чего свободные стороны следует, как и в предыдущем случае, закрыть заглушками

Достаточно засыпать песок до половины трубы
Шаг второй: окрашиваем трубы в нужный цвет. Конечно, можно оставить их в исходном цвете, но в данном случае это позволит придать конструкции изюминку. Для начала необходимо покрасить трубу из баллончика или кистью в выбранный цвет и дать ей подсохнуть
Делать это нужно осторожно и лучше на открытом воздухе, потому что существует риск испачкать различные предметы в квартире. Если вы хотите, чтобы одна труба была покрашена в два или более цветов, отметьте границы липкой лентой

Клейкая лента позволит сделать границы цветов ровными
Шаг третий: формируем каркас вешалки. Здесь все очень просто — достаточно лишь соединить трубы с помощью прочной веревки. Ножки конструкции следует расставить по разным сторонам. Готовое изделие внешне напоминает вигвам.

Для сборки вешалки лучше использовать декоративный плотный шнур
Стоит отметить, что такая конструкция довольно громоздкая, поэтому вряд ли подойдет для маленькой комнаты. Кроме того, она скорее является декоративным элементом, чем функциональным.

Готовая вешалка
Поделки из пластиковых труб для детей
Мастерить с детьми разные поделки не только весело, но и важно. Ведь в процессе их изготовления дети приобретают новые навыки и обучаются важным основам

Детский манеж
Собрать такую поделку очень просто. Правда, для этого вам понадобится большое количество небольших отрезков, потому проще предварительно приобрести целые трубы и нарезать их согласно придуманной вами схеме.

После того как все необходимые детали будут готовы, можно начинать к сборке, соединяя между собой расположенные вертикально перегородки горизонтальными отрезками сверху и снизу.

Качели
Для сборки качелей лучше выбрать армированную пластиковую трубу, способную выдержать столь большую нагрузку. Перед тем, как приступать к работе над поделкой, лучше потренируйтесь на чем-то более простом.

Качели, собранные из труб могут быть самыми разными. Наиболее распространенные их вариант — в форме небольших подвесных диванчиков часто встречается в магазинах дачной мебели. Цена их довольно высока.

Ознакомьтесь с их конструкцией, снимите нужные вам размеры, придумайте и начертите эскиз и приступайте к сборке.

Футбольные ворота
Поделка подойдет тем, у кого на даче есть место для создания небольшого футбольного поля. Поделка состоит из некоторого количества элементов, собираемых в прямоугольный каркас. Для большей реалистичности можно купить сетку и натянуть ее на готовую конструкцию.

Уточним предназначение домашней вешалки-стойки
В общем виде любая вешалка предназначается для хранения одежды и обеспечения порядка в жилье. В данном случае Вы также имеете возможность украсить прихожую или комнату в уже заложенном стиле и самореализоваться. Именно самодельная конструкция позволяет использовать пространство помещения оптимально.
При этом не следует спешить и приступать к работе, пока не изучите возможные варианты и не определитесь с выбором конструкции и дизайна изделия.

Давайте перечислим основные факторы, определяющие наше решение:
- Во-первых, следует оценить размеры помещения. Вешалка должна украшать и дополнять пространство, а не отнимать место или прятаться в углу.
- Во-вторых, нужно учесть оформление комнаты. Новая мебель должна быть согласована по дизайну, а не вступать в противоречие с ним.
- В-третьих, нужно понимать, кто будет ею пользоваться. Так, слишком сложная конструкция с выступающими элементами озадачит пожилых людей, а излишне высоко размещенные плечики недоступны детям. Одним словом, Вам следует пробудить в себе чувство дизайнера и принять правильное решение.
Изготовление
Рассмотрев чертежи конструкции, переходим к основной части и пошагово расскажем, как сделать футбольные ворота из пластиковых труб своими руками, дополнив мастер-класс фото. Процесс изготовления будет состоять из нескольких этапов – создания каркаса, плетения сетки и монтажа ворот на участке.
Каркас
Процесс изготовления пошагово:
Трубу необходимо нарезать трубу на заготовки. Требуется 4 отреза по 1 м, 4 отреза по полметра
Важно, чтобы все элементы были идентичного размера, иначе готова конструкция будет кривой.
Три отреза метровой длины соедините в П-образную конструкцию при помощи колен.
Два тройника прикрепите к нижним концам труб.
К тройникам (боковой части) прикрепите трубы длиной 0,5 м.
Полуметровые трубы соедините при помощи колен последним отрезом метровой длины.
Все места креплений требуется дополнительно зафиксировать саморезами.
Из такого же набора материалов необходимо соорудить вторую пару ворот. Конструкция должна выглядеть следующим образом (пока еще без сетки):

Готовый каркас с натянутой сеткой.
Также можно сделать ворота с дополнительными диагональными перемычками между верхней частью и нижней длинной опорой. Для этого потребуется два дополнительных отреза труб, а также 6 колен и 4 тройника.

Ворота с диагональными поперечниками.
Сетка
Можно решить задачу с сеткой очень быстро – купить готовый вариант. Но в нашем мастер-классе мы рассмотрим изготовление самоделки.
Требования к материалу сетки:
- Прочность и надежность – основные критерии, поскольку главная задача сетки – сдерживать мяч, а иногда и падающего игрока.
- Устойчивость к УФ-лучам и любым атмосферным воздействиям.
Сама же сетка должна быть эластичной, прочной, соответствие параметрам ворот и выдерживать не только летящий мяч, но и футболиста в некоторых случаях. Ячейки могут быть квадратными или шестигранными, мы будем делать первый вариант, поскольку он намного проще. Размер ячеек может быть разный, обычно это 4 или 10 см.
Итак, процесс изготовления сетки состоит из следующих этапов:
На задних стенках труб закрепите саморезы, выдерживая одинаковое расстояние между ними (4,5 или 10 см)
Важно фиксировать их не полностью, а оставлять пространство в несколько миллиметров между трубой и шляпкой – здесь будет проходить сетка.
Начиная с правого или левого края наматывайте веревку от верхней трубы к нижней до самого конца ворот.
Затем начните горизонтальное плетение – оно займет несколько больше времени, потому как придется вязать узелки, каждый раз пересекая вертикальные нити. В результате плетения должны получаться идентичные квадраты.
Когда задняя стенка будет готова, по такому же принципу сделайте плетение для боковых стенок и повторите всю процедуру для второй пары ворот.
Советы при монтаже конструкций из ПВХ труб
Изготавливая вешалку или другие изделия из пластиковых труб, нелишним будет ознакомиться с рекомендациями специалистов:
- соединение пластиковых труб выполняется специальным клеем, но стоит он недешево и на большие изделия приходится немало тратиться. Однако такой клей можно заменить аналогичным веществом, которое предназначено для соединения деталей из пластика;
- большинство изделий не выделяются своей сложностью, но предварительно сделанный чертеж облегчит сборку;
- применяя для фиксации пластиковых элементов клей, следует использовать перчатки для защиты кожи рук, а также маску. Кроме этого, процесс сборки рекомендуется проводить на улице;
- выбор пластиковых труб сегодня довольно широкий и все они имеют разные характеристики, с которыми следует заранее ознакомиться. Для повышения прочности вешалки можно купить трубы с металлизированным слоем;
- чтобы придать трубам разные изгибы, их нагревают в определенных местах, после чего добиваются нужной формы. Для этого подойдет, например, строительный фен либо горячая вода;
- для придания устойчивости трубы заполняют песком. Если изделие имеет большие размеры, внутрь труб иногда вставляют арматуру.
Разобравшись в конструкции и ознакомившись с чертежами, фото-примерами и мастер-классом, становится понятно, что в создании напольной вешалки для одежды своими руками из пластиковых труб ничего сложного нет. Главное, задаться целью, выбрать из множества идей подходящий для вас вариант и воплотить его в реальность, что вполне по силам каждому.

Форма и размер вешалки из труб зависит от задач, возлагаемых на данную конструкцию, интерьера помещения, количества одежды и других предметов гардероба, которые нужно разместить. Вешалки могут быть настенными, напольными, последние при необходимости оборудуйте мебельными колесами, сделав устройство мобильным.
Достоинства ПВХ труб: — белоснежный цвет; — соединять трубы с фитингами можно при помощи клея, либо вовсе без него; — если не использовать клей, то конструкция получится разборной, и подобно конструктору ЛЕГО можно использовать фитинги и трубы для сборки других конструкций. Разумеется, полипропиленовые трубы лишены этих достоинств
























































