Что говорят нормативы
Любые электромонтажные работы — особенно, выполняемые своими руками — должны производиться с учетом действующих государственных стандартов и других регламентирующих документов. В них четко прописываются нормы относительно возможных мест размещения розеток
В ГОСТах 7397.0-89, 8594-80, 7396.1-89 и СНиПах 3.05.06-85 следует обратить внимание на следующие требования безопасности:
- высота размещения розеток от уровня плинтуса должна быть не более 2 метров;
- «точки» располагаются в местах, где исключается вероятность попадания на электрическую фурнитуру капель, брызг, пара и т.д.;

подключаемая бытовая техника должна находиться не более чем в 1 метре от предполагаемой розетки.
Безусловно, в стандартах и правилах гораздо больше информации, которую желательно изучить перед началом электрических монтажных работ.
Какие розетки лучше использовать?
Выбор розеток зависит не только от дизайна и планировки кухни, но и от особенностей их применения. В помещении для готовки уместны специальные изделия с повышенным уровнем влагозащиты – с силиконовыми мембранами (IP 44), оберегающими контакты в самой монтажной коробке. Такие изделия идут с крышками или шторками, благодаря которым мусор и брызги не попадают внутрь. Обычные накладные розетки применяются редко.
Если нужны дополнительные розетки на уже отремонтированной кухне, а портить стены или фартук не хочется, можно приобрести специальные выдвижные блоки и спрятать их в столешнице. При лёгком нажатии выезжает защитная деталь, открывающая доступ к сети. Ещё один вариант – накладная угловая электророзетка или угловой сетевой фильтр, которые устанавливаются под шкафчиком кухонного гарнитура.
Встроенные в столешницу изделия отлично смотрятся и практически незаметны, но неудобны для постоянного использования. Такие устройства полезны, когда нужно подключить прибор на короткое время (блендер, комбайн или миксер), а для электрического чайника такой вариант будет не столь выигрышным.



На фото удобный тройник, открывающийся при необходимости. Если он не используется, крышка остается закрытой.
Какую розетку выбрать
Чтобы правильно выбрать розетку, необходимо определиться, какие функции она будет выполнять. После этого нужно удостовериться, что её конструкция является достаточно надёжной
Обратите внимание на следующие факторы:
Моментный двигатель: принцип работы, основные характеристики и преимущества
- Для чего нужен автоматический выключатель в квартире
Почему ноутбук MacBook перестал заряжаться
- Пластиковое основание более подвержено перегреву, особенно при высокой нагрузке или неисправности вилки;
- Керамические основания значительно безопаснее, но в магазинах встречаются куда реже, чем пластиковые;
- Отличным материалом корпуса может послужить противоударный пластик. Он довольно безопасный, ведь обеспечивает хорошую сопротивляемость механическим воздействиям, но стоит дороже.
Защитные шторки. Закрывают контакты от внешнего воздействия. Полезны, если в помещении находятся маленькие дети или есть вероятность попадания влаги. Данные шторки не изымаются, что минимизирует риск. Если розетка находится в плинтусе, обязательно используйте эти приспособления.

Откидная крышка. Часто используется во влажных помещениях по типу ванной или бани. Когда к розетке не подключено электрооборудование, крышка закрывается и не даёт влаге попасть внутрь.

Если есть необходимость заказать товар через электронную доску объявления, не стоит доверять фото накладных розеток, которые там размещены. Обязательно проверяйте товар перед покупкой.
Расчет необходимого количества
Чтобы определить, сколько розеток нужно на кухне, требуется посчитать всю бытовую технику и электроприборы. При подсчете учитываются следующие точки подключения:
- Для духовки, варочной плиты, посудомойки и стиральной машины, холодильника.
- Место подключения зарядных устройств ноутбуков, сотовых телефонов, различных гаджетов.
- Подсчитывается, сколько розеток нужно на кухне для запитки наиболее часто используемых электроприборов, вилки которых постоянно подключены к сети: микроволновая печь или мультиварка, телевизор, чайник, кофемашина.
- Место подключения вытяжки, которая также не отключается от сети.
- Отдельные точки для запитывания подсветки кухонной мебели и обеденной зоны.
Размещение и группировка розеток
Где разместить розетки на кухне
Вопрос, где на кухне делать розетки, не менее актуален. Ведь правильное размещение этих электроустановочных аппаратов обеспечит максимальный комфорт при их эксплуатации и значительно сократит риски, связанные с их использованием.
Выбор расположения розеток на кухне
- Согласно п.6.6.30 ПУЭ, розетки следует располагать в местах, удобных для их обслуживания в зависимости от интерьера и назначения помещения. Это является основным правилом расположения розеток.
- Исключение из этого правила составляет только расположение розеток под и над мойками, в шкафах и других неудобных местах. При этом, согласно п.12.30 ВСН 59 – 88, расстояние до заземленных частей и трубопроводов не имеет значения.
- Также следует помнить, что, согласно п. 7.1.50 ПУЭ, розетки и выключатели должны располагаться не меньше чем в 50 см от газопроводов. Дабы в случае повреждения газопровода или розетки это не привело к пожару.
- ПУЭ разрешает размещать розетки в специальных плинтусах, а также в стационарных нишах внутри кухонной мебели. При этом закладные коробки для такого вида электроустановочного оборудования должны соответствовать нормам противопожарной безопасности.
- Исходя из всего этого, на какой высоте делать розетки на кухне, зависит только от ваших пожеланий. Обычно для этого используют высоту около 30 см от пола. Но это не является нормой. Например, розетку для вытяжки целесообразно разместить на высоте 1,5-2 метра над полом, дабы провода не портили интерьер помещения, спускаясь с потолка через всю стену.
Группировка розеток для кухни
Перед тем, как на кухне установить розетки, вам придется решить еще один вопрос. Это их распределение на группы. Они формируются, исходя нагрузки каждой отдельной розетки и всей группы в целом. Но здесь есть и определенные нюансы.
Вариант группировки розеток на кухне
Итак:
- Согласно п.7.2 ВСН 59 – 88, розетки разрешается подключать как с смешанной группе, откуда питаются освещение и розетки, так и с раздельного питания с учетом нагрузок. Данный пункт рекомендует совмещать розетки и освещение в прихожей и кухне в одну группу, а для остальных комнат применять другую группу.
- Но для большинства современных кухонь, насыщенных разнообразными электрическими устройствами, одной группы зачастую недостаточно. Поэтому чаще всего приходится организовывать одну или две розеточных группы и одну смешанную. И правильное распределение по группам иногда позволяет решить многие задачи.
- Прежде всего следует помнить, что для мощных потребителей электроэнергии целесообразно организовывать отдельную группу. К таким можно отнести разнообразные электрические нагреватели и электрические печи.
- А вот при распределении розеточных групп своими руками советуем вам создать одну группу с ответственными электроприемниками. К ней можно отнести холодильник, морозильную камеру, электрокотел и другие приборы, обесточение которых крайне нежелательно. Благодаря такому объединению, вы сможете обесточить весь дом или квартиру на время длительного отсутствия, а эти электроприборы оставить в работе.
- К смешанной группе лучше всего подключить розетки для временных электроприемников. Ведь зачастую они имеют небольшой номинальный ток, но их достаточно много. В то же время они наиболее часто подвержены поломкам вследствие их частого использования. И их доступность вы по достоинству оцените во время ремонта.
- Но все эти советы носят лишь рекомендательный характер. И как сделать розетки на кухне — зависит только от вас и ваших условий.
Схема расположения
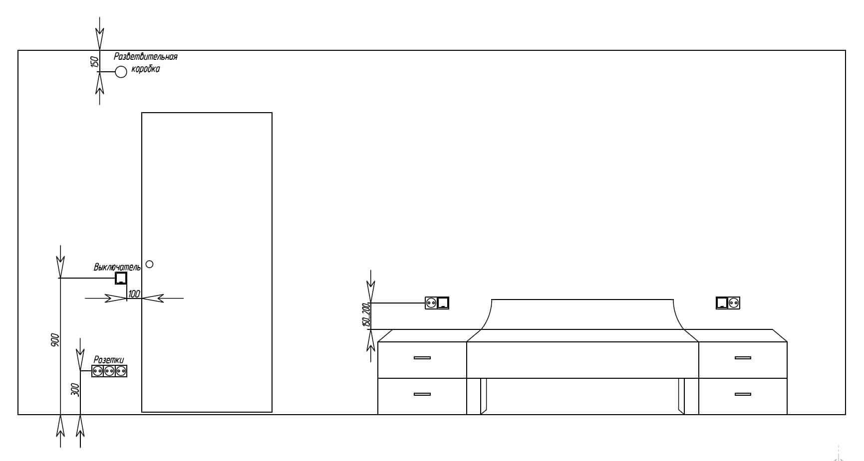
По советам профессионалов мы сделали пошаговую инструкцию по выбору расположения электроточек в спальне. Все шаги делать до монтажа проводки и штробления стен, карандашом или маркером на стенах.
Первый шаг – считаем количество оборудования, выше описан типовой набор, у нас вышло около 9 розеток для него.
Второй шаг — разбиваем комнаты на зоны и определяем, как будем подключать оборудование. Итак, для подключения телевизора нужно установить блок из 3 и более розеток, можно установить по 2 двойных или 3-4 одинарных за телевизором. Если он стоит на тумбе – возможна установка вдоль плинтуса, а если он подвешен на стене – 130-150 сантиметров прямо за телевизором. Так вы сможете скрыть провода и улучшить эстетический вид комнаты.


Под рабочее место на самом деле достаточно и 2 электроточек, ведь компьютерную технику положено подключать через сетевой фильтр. От него запитаем и акустическую систему, и роутер, и другие сопутствующие приборы, а ко второй подключим настольную лампу.

Высота установки в этом случае должна быть немного выше стола. При условии, что рабочие столы в среднем по 75-80 см, значит устанавливаем их на высоте 90-100 см или под ним – высота 30-60 см.

Если у вас большая спальня и с каждой стороны возле кровати стоит прикроватная тумбочка, то возле неё устанавливаем по 2 розетки: 1 для светильника и 1 для зарядки мобильных устройств. Если вы обычно заряжаете что-то еще кроме смартфона или часто работает за ноутбуком лёжа в постели, то будем идеальным решением установить 2 или 3 с каждой стороны возле кровати на расстоянии вытянутой руки. Правильное их расположение на 10-20 сантиметров над тумбочкой. Они обычно невысокие, значит розетка будет установлена на высоте около 60-80 см.

И около стола для макияжа или трюмо устанавливаете две розетки – одна для светильника, а вторая для фена и плойки, например. Как её расположить решайте, опираясь на длину проводов. Оптимальной будет установка на высоте 120 см от пола.
Третий шаг – нужно определить достаточно ли мест для подключения приборов в спальне и не создается ли впечатление что их слишком много. Если розетки ощутимо портят внешний вид помещения, можно визуально уменьшить количество. Более точно подойдите к вопросу где их ставить. Например, если возле прикроватных тумбочек вы решили установить 4 розетки, посмотрите где они будут лучше смотреться вверху или внизу у кровати, перенеся некоторые за мебель или ближе к плинтусу. Кстати, если вы в этой комнате будете гладить белье – также позаботьтесь о подключении утюга около свободного угла или стены.

Также рекомендуем посмотреть видео, на котором наглядно показывается, где лучше установить выключатели и розетки в спальне:
Для каждой спальни правильное расположение всех элементов интерьера подбирается индивидуально. Поэтому данную статью следует рассматривать как один из вариантов решения задачи. Размещение розеток в спальне в большей степени зависит от количества оборудования и привычек жильцов. Возможно вам будет удобно вообще разместить блок из дюжины точек для подключения питания в одном ряду где-нибудь возле стола или тумбы. Также немаловажную роль играет дизайн и размеры помещения.
Также читают:
- Как расположить розетки на кухне
- Правильное размещение светильников на потолке
- Как разметить стены под электропроводку
Как подобрать проводку для кухни
Ведя разговор про установку и расположение розеток на кухне, не лишним также будет упомянуть и саму проводку.
Установка розеток на кухне – процесс очень ответственный, так как если не рассчитать правильно потребляемую мощность, может произойти короткое замыкание. Специалисты рекомендуют для такой техники как электроплита, варочная поверхность и электродуховка вести отдельную линию от распределительного щитка, чтобы максимально равномерно распределить нагрузку. Кроме того, эту линию необходимо обеспечить своим автоматом повышенной мощности, и при этом должен быть соответствующий кабель, способный выдержать такую нагрузку.
Для стиральной и посудомоечной машины тоже желательно провести отдельную линию и обеспечить ее своим автоматом. Что касается всех остальных розеток, то в этом случае каждую обеспечивать отдельной линией – это чрезмерная трата средств.
Как показывает практика, розетки для рабочего места кухни должны быть рассчитаны под скрытую проводку, поскольку в этом случае значительно снижается вероятность случайного повреждения кабеля, из-за чего его необходимо будет менять.
Следует помнить о том, что хороший ремонт – это не только грамотно подобранный дизайн отделочных материалов. Это также грамотное и безопасное расположение розеток, которые обеспечивают все необходимые подключения и при этом не создают повышенной нагрузки в сети. Таким образом, над этим вопросом необходимо задумываться еще на начальном этапе ремонта. Для этого нужно составить план всего, что будет располагаться на кухне и что нуждается к подключению в электросеть.
После этого нужно пробить дырки в стенах для будущих розеток под скрытую проводку, а также каналы для самой проводки. Следует помнить, что такая техника как электроплита, варочная поверхность и другая техника, потребляющая большое количество электроэнергии, нуждается в проведении отдельной линии, на которой будет установлен свой защитный автомат, а также ей необходим соответствующий кабель.
Схема размещения розеток на кухне
Расположение розеток на кухне требует грамотного подхода. Возникают затруднения, доверьтесь специалисту. Производить разметку нужно на голые стены, в современных постройках проводка находится внутри штроб. Их делают во время проведения ремонтных работ, так как после укладки проводки канавку оштукатуривают и заканчивают финишной отделкой.
Важно помнить, что каждый бытовой прибор следует размещать на отдельный автомат в электрощитке. Важно! Соблюдая меры безопасности, укладывайте провода в гофре
Важно! Соблюдая меры безопасности, укладывайте провода в гофре. Чтобы верно сделать работу, определитесь, сколько понадобится техники
К наиболее нужным относятся: чайник, микроволновая печь, холодильник, духовой шкаф, плита, вытяжка. Это стандартный комплект, но еще могут добавиться стиральная машина, посудомоечная, TV и пр. В макете учтите все пожелания хозяйки
Чтобы верно сделать работу, определитесь, сколько понадобится техники. К наиболее нужным относятся: чайник, микроволновая печь, холодильник, духовой шкаф, плита, вытяжка. Это стандартный комплект, но еще могут добавиться стиральная машина, посудомоечная, TV и пр. В макете учтите все пожелания хозяйки.
Определяемся с количеством
Рассчитать общее число необходимых для кухонной комнаты розеток не составит труда. Это под силу сделать каждому самостоятельно. Достаточно воспользоваться простой арифметикой, посчитать количество используемых электроприборов, чтобы определить, сколько потребуется электроточек:
- Электрическая плита;
- Холодильник;
- Водонагреватель;
- Посудомоечная машина;
- Вытяжка;
- Стиральная машина;
- Электрочайник;
- Микроволновка;
- Дополнительные устройства (блендер, кофеварка, соковыжималка);
- Другие компоненты (телевизор, вспомогательное освещение).
Выполнив подсчет всех предметов, добавляем запас, необходимо полученную сумму увеличить на четверть. При этом стоимость работ возрастет, но в дальнейшем, при появлении новых устройств, не потребуется прокладки дополнительной проводки, что не всегда возможно.

Схема размещения розеток на кухне
Планируя перенос розеток и монтаж новых точек, следует учитывать уровни, на которых будут находиться потребители энергии.
- Нижний: холодильник, стационарная плита, стиральная и посудомоечная машины. Некоторые проекты предусматривают установку электрических измельчителей и фильтров для воды под мойкой.
- Средний. Здесь подразумеваются все оборудование и приборы, которые устанавливаются на столешнице и над ней — кофеварки, скороварки, лампы для подсветки, кухонные комбайны и микроволновые печи.
- Верхний. Здесь располагают вытяжку, кондиционер и телевизор. На перспективу можно предусмотреть вероятность оборудования кухни бра или светодиодной лентой.
Исходя из такой планировки следует делать три независимые линии для снабжения электричеством каждого яруса. Используя мощный медный кабель сечением 2,5 мм, можно последовательно соединить все модули с минимальными расходами на материал и предварительные работы.
Лучшие варианты размещения
Удобство пользоваться приборами на кухне зависит от правильного расчета количества розеток и схемы подключения
Поскольку в районе рабочего стола находится большая часть потребителей электроэнергии, его нужно задействовать максимально. Если будет использоваться плоскость декоративного фартука, нужно предусмотреть, чтобы блоки не нарушили сюжет нанесенного на поверхность изображения.
Следующая рекомендация касается решения о том, как лучше распределить точки по фартуку и столешнице. Целесообразно ставить розетки средней линии так, чтобы они находились симметрично, на одинаковом уровне и расстоянии друг от друга. При этом нижнюю линию можно сделать скрытой, используя свободное место между тумбами и стеной.
Для верхнего яруса следует устанавливать розетки так, чтобы они не бросались в глаза, соблюдая при этом правила электротехнической безопасности.
Чтобы не ошибиться в выборе схемы размещения приборов, следует сделать на ее основе несколько эскизов в цвете и масштабе. После их сравнения остается выбрать самый эффективный и продуктивный вариант. При этом нужно учитывать возможность прокладки проводки открытым способом. Это разрешается делать за шкафами под столешницей.
Количество розеток
Проводя расчет, сколько розеток должно быть на кухне, рекомендуется придерживаться правила разумной достаточности. Излишек приведет к загромождению рабочих поверхностей, лишним тратам времени, сил и денег на установку. Недостаток тоже имеет свои минусы — придется использовать удлинители и тройники, что недопустимо по СНиП.
Чтобы не ошибиться при планировании, нужно учесть все приборы, которые будут подключены постоянно и добавить к ним половину того, что задействуется периодически. Дополнительно следует добавит 2-3 резервных гнезда.
Расстояния и места размещения
Высота установки розеток и выключателей на кухне
Высота розеток над столешницей на кухне выбирается не только по критериям красоты или удобства. Необходимо помнить, что на рабочей поверхности проводится работа с жирами, маслами и водой. Неаккуратность или случайность приводит к разливу жидкостей. Если розетки находятся на уровне столешницы, велик риск короткого замыкания и поражения человека током.
Расстояние между точками и потребителями энергии должно быть в таких пределах:
- холодильник — 5-20 см;
- розетки рабочей зоны и над столешницей — 10-30 см;
- вытяжка — 15-40 см;
- варочная и духовка — 30-50 см;
- посудомойка — 10-30 см;
- телевизор на кухне 5-50 см;
- кондиционер — 10-80 см.
Эти параметры обусловлены уровнем тепла, который создает техника, а также вероятностью возникновения протечек при аварийных ситуациях.
Основные принципы размещения кухонных розеток
Не стоит игнорировать следующие правила.
- В приборах, состоящих из ряда гнезд, имеется разрешенная единая мощность. Данный коэффициент обязателен при подборе техники. Приборы, потребляющие много электричества, не подсоединяйте к одной розетке.
- Чтобы правильно провести проводку, кухня делится на зоны. Для обеспечения безопасности единая вычисленная мощь удваивается с целью формирования рационального резерва.
- Технику, имеющую металлический корпус, заземляйте и подключайте к автоматическим выключателям, а также УЗО. Электророзетки для габаритных приборов располагаются в двадцати сантиметрах сбоку от них.
- Если розетка располагается в рабочей зоне, ее устанавливают в месте, где нет жидкости и брызг жира.
- Если около электроточек проходят жилищные коммуникации, применяйте при установке уплотнители из резины, а приборы используйте с крышками. Это не допустит замыкания, если возникнет аварийная ситуация.

Максимальная мощность, когда одновременно включено несколько токоприемников, в обычной квартире, как правило, не превышает 7кВт.
Чтобы правильно рассчитать число рабочей техники, необходимо разбираться в маркировке техники. Если имеется надпись 10А, подключается техника мощностью 2,2 кВт, а если 16А, то 3,5 кВт.

Первоначально высчитывается мощность всех электроприборов, которые будут стоять на кухне.
Критерии выбора розетки
Розетки – это приспособления, используемые для подключения электрических машин и приборов к сети питания. Главной их задачей является создание надежного контакта вилки прибора с электросетью. На кухне используются розетки, как и в других помещениях, с напряжением до 250В, для тока 10А или 16А.
Хорошая розетка для кухни, должна удовлетворять таким критериям:
- Иметь показатель защиты IP 44. В этом случае, в изделие входят резиновые прокладки и крышки, препятствующие попаданию воды.
- Бытовые приборы с большой величиной потребления энергии: бойлер, холодильник, машинка для стирки (см. Розетка для стиральной машины: какую выбрать), необходимо подключать к отдельным розеткам, которые подводятся к распределительному щитку.
- Для вертикального расположения, лучше использовать изделия со штепсельными плоскостями, которые развернуты под углом. В этом случае, вилки не мешают друг другу.
Расположение розеток над разделочным столом
Типы розеток
Основные типы розеток и их особенности представлены в таблице:
| Тип розетки | Особенности |
| По конструкции | |
Угловая | Для кухни это очень удобный вариант. Такие изделия можно размещать на стыке стен, под навесным шкафом. Они бывают одинарными и модульными, состоящими из двух и более розеток. Монтируются, как и обычные модели. |
Выдвижная | Эта модель — альтернатива удлинителю. Блоки помещаются в столешнице или в шкафах, в которых они спрятаны от влаги и пыли. К приборам можно подключать несколько электрических устройств. |
Скрытая | Такой вариант используется для встраивания в столешницу, что придает ей более эстетичный вид. Обычно это блок, в составе которого могут быть несколько розеток, и разъемов для выходов видео, аудио, зарядки гаджетов. При этом блок скрывается в столешнице, а при необходимости, нажатием на крышку корпуса розетка выдвигается. |
Накладные кухонные розетки | Это достаточно простые в монтаже конструкции, но на кухнях они применяются реже остальных, лучше их использовать для открытых проводок. |
| По электрической схеме подключения | |
С заземлением | В такой розетке скрытой установки, имеется специальная деталь с заземляющим контактом, подсоединенным к проводу для заземления. Используется в помещении, где есть провод заземляющего типа. Конструкция снабжена гнездами для штифтов, отвечающих за проведение зануления, до подачи электричества к прибору. Применяются изделия при подключении плит, холодильников, кондиционеров или морозильных камер. |
Без заземления | Это обычная советская розетка на кухне, без заземления. Устанавливается в помещении с наличием двухпроводной электропроводки, и с невозможностью провести заземление. Цена их самая малая. |
| По защите от влаги | |
Стандартная розетка | Такой вариант хорошо подходит для помещений с обычной влажностью, в модели отсутствует функция защиты от влаги. |
С повышенной влагозащитой | На кухне стоит отдавать предпочтение таким моделям. В них имеются специальная резиновая мембрана и плотные кольца из резины, выполняющие роль хорошей защиты от влаги. Пластиковые шторки и крышки розетки отводят скопление конденсата или жидкости с поверхности изделия. |
| По количеству колодок | |
Одноместная | В такой розетке имеется только одно гнездо для подключения электрического прибора. |
Двухместная | Розетка двухместная включает два гнезда, обеспечивающие электричеством два прибора, что очень удобно для кухни. |
Трехместная | Трехместная розетка — менее распространенный вариант, позволяющий подключить к электрической сети сразу три прибора. |
Принципы расчета количества розеток в кухне
Важно правильно определить, сколько розеток делать на кухне. Лишние источники тока вызовут неоправданные расходы на покупку и установку
Недостаточное количество создаст неудобства. В идеальном варианте каждый прибор имеет свое гнездо для подключения. Но в кухне некоторые приборы используются время от времени, для них устанавливать отдельную розетку нецелесообразно.
Есть определенные правила, которыми пользуются специалисты при разработке схем электропроводки. Они помогут определить, сколько нужно розеток на кухню. При расчете количества следует руководствоваться следующими принципами:
- отдельный источник тока монтируется для каждого стационарного агрегата;
- 1 устройство монтируется рядом с обеденным столом;
- по бокам рабочей столешницы устанавливается по блоку;
- 1 розетка располагается у входа.

При разработке схемы определяется количество розеток на кухне
Собственное гнездо потребуется технике, которая работает постоянно, включается регулярно. К таким устройствам относятся холодильники, плиты, вытяжки, варочные панели и духовые шкафы, посудомойки, микроволновки, телевизоры. На обеденном столе может потребоваться подогрев чая, кофе, на нем может устанавливаться тостер. Нередко в этой зоне располагается бра.
Размещение розеток на кухне в рабочей части позволяет пользоваться комбайном, миксером, блендером, кофемашиной, другими устройствами для приготовления пищи. В большинстве своем точки подключения электроприборов создаются на фартуке, в местах, недоступных для пара, брызг воды. Наличие свободного источника тока у входа предоставляет возможность подключения пылесоса, зарядки для телефона, ноутбука и др.

Расположение розеток на кухне над рабочей поверхностью
Основные ошибки, которые допускаются при планировке розеток на кухне
Условно ошибки можно подразделить на незначительные и грубые. Первые связаны с неудобством использования. Вторые могут нанести серьезный вред электропроводки и всей электробезопасности квартиры.
Незначительные ошибки связаны с тем, что розетки устанавливаются в неудобных местах. Хозяин либо не может до них дотянуться, либо доступ к ним осложнен и перегорожен. Также к этой группе можно отнести отсутствие нескольких дополнительных точек питания. Они могут понадобиться для дополнительной техники (например, для зарядки телефона или ноутбука, подключения пылесоса или настольной лампы).
Основная ошибка – несоблюдение техники безопасности. Может быть неправильно выбрано место установки розетки – в непосредственной близости от источников воды или плиты. Также могут быть неверно рассчитаны сечения кабелей для подключения или мощность приборов. Возможно нарушение изоляции проводников
Все эти причины могут привести к серьезным последствиям, поэтому важно следить за правилами безопасности
Мощные приборы требуют отдельных линий, которые идут к щитку. При проектировании некоторые про это забывают, и в результате электропроводка не справляется с поданной нагрузкой.
Неправильный выбор розетки также может вызвать негативную ситуацию. Точки питания рядом с источниками воды должны иметь соответствующую степень защиты. Изделия, расположенные близко к полу, советуется покупать с защитными шторками
Это важно, когда в доме есть маленькие дети
Отдельная сложность заключается в подключении холодильника. Их запрещено запитывать через удлинитель, а провод от устройства имеет длину 1 м. Это нужно учитывать при проектировании точки питания.
Выбирая электротехнические изделия для кухни, следует не забывать и о дизайнерской составляющей. Цвет приборов не должен выбиваться из общего стиля кухни.
На линии с мощными электроприборами советуется ставить отдельные автоматы. В случае поломки электропроводки автоматические выключатели сработают и отключат электричество.
Правильное размещение электророзеток на кухне – это залог не только комфортной, но и безопасной работы. На каждую группу приборов следует поставить отдельную точку питания, а для изделий с повышенной нагрузкой выделяется и отдельная линия до распределительного щитка. Перед покупкой розеток нужно составить план размещения, рассчитать суммарную нагрузку от бытовой техники и убедиться, что электропроводка способна выдержать такую мощность.
Как установить своими руками?
Разобраться с правильной прокладкой проводов и установкой монтажных коробок несложно. Основные операции проводятся еще до чистовой отделки помещения.
- Определившись с потребителями и местами установки розеток, переходят к их разметке на стенах.
- Намечается центр, после чего коронкой на 63 мм для «подрозетника» выполняется отверстие глубиной 40–60 мм. Если специального инструмента нет — можно обойтись зубилом и молотком. Многие профессиональные электрики предпочитают работать болгаркой и перфоратором.
- Затем можно переходить к закреплению монтажной коробки с пропущенным в нее проводом. Обычно фиксация производится посредством строительного гипса или штукатурной смеси. Допустимо применять специальный клей.
- После «цементирования» все пустоты и щели по периметру коробки заделываются штукатуркой.
Длина выступающего провода должна быть не менее 150 мм, чтобы при подключении можно было без проблем произвести монтаж розетки или выключателя.

























































