Инструкция по сборке
1) Из куска ДСП будет изготовлена столешница. Его толщина составляет 1.8 см. Следует высверлить в столешнице пилы 4 отверстия по углам.
Отверстия потом будут использоваться для фиксирования дисковой пилы на нашей столешнице из ДСП.
2) После сверления необходимо уделить внимание краям отверстий. Нужно убрать все выступы напильником
Это необходимо для того, чтобы низ пилы плотнее прилегал к столешнице.
3) Теперь вооружаемся карандашом и ровной линейкой или другими подручными средствами. С их помощью отмечаем место, где будет расположена пила.
4) Выравниваем нашу пилу по отмеченной линии. После чего, не сдвигая пилу с места, отмечаем положение всех отверстий и просверливаем их. Теперь на пиле и на столешнице имеются отверстия для фиксации наших элементов в одно целое.
В качестве соединительных элементов можно взять саморезы. Главное что бы они были с толстой шляпкой, она не даст углубиться саморезу вглубь ДСП. Их длина не должна быть слишком большой, они не должны вылезать с другой стороны столешницы.
5)Следующим этапом станет проделывание паза для диска. Для этого предварительно надежно закрепляем столешницу, что бы она не шаталась. Сделав паз, фиксируем положение пилы в самом нижнем положении.
Перевернув нашу конструкцию нужно проверить угол наклона пилы. Для этого берем прямоугольный треугольник и смотрим, чтобы угол был прямым. Станок почти готов, осталось сделать упорную линейку.
Ее мы будем изготавливать из обрезка толстой столешницы. Как видите, примитивный станок и направляющая линейка были прикреплены к каркасу старого столика для большего удобства. Расстояние от направляющей линейки до зубчиков пилы составляет 52 мм. Так как кнопка пилы не фиксируется, ее можно установить в одном положении при помощи прищепки. Это позволит временно управлять пилой посредством вставки и вытаскивания вилки из розетки.
6) Отпиливаем брусок от обрезка столешницы. Заодно можно удостовериться в качестве реза нашего самодельного станка. Теперь для этого бруса нужно сделать крепления. С одной стороны брус будет крепиться таким прямоугольным бруском с вырезом. Верхняя поверхность бруска спилен под небольшим углом.
Этой поверхностью брусок будет прикреплен к нашей новой направляющей.
Таким образом, линейка будет сама себя фиксировать при вставке получившегося зазора между креплением и направляющей в выступ столешницы. С другой стороны направляющей сделаем другое крепление. Оно будет выглядеть следующим образом. Это крепление нужно снабдить закручивающимся винтом. Это нужно для того, чтобы была возможность ослаблять и лучше фиксировать нашу направляющую.
Для винта понадобится небольшой деревянный кубик, мебельную муфту и мебельный болт. Мебельную муфту вворачиваем в просверленное отверстие необходимого диаметра в креплении.
7) Мебельный болт аккуратно забиваем в просверленное отверстие в кубике. Отверстие в нем двойное, сверху большего диаметра, снизу меньшего. Для того чтобы можно было зафиксировать шляпку болта в кубике и при этом не прокручивалась.
Для лучшего эффекта болт нужно вбить. Просверливаем отверстие чуть большего диаметра, чем болт, в направляющей. Вставляем болт. Затем собираем все крепление воедино.
Теперь только остается надежно закрепить столешницу с пилой к каркасу старого стола и наш циркулярный станок собственного изготовления готов.
Можно наводить точные настройки направляющей линейки и пользоваться как полноценным станком.
Видео: циркулярка своими руками.
Циркулярная пила – это важный и нужный для многих людей инструмент, позволяющий самостоятельно заниматься многочисленными видами работы по дому. Он обладает достаточно высокой стоимостью, поэтому многие люди задумываются о том, чтобы сделать его своими силами. Для этого надо подготовить верстак или стол оптимального размера, заменяющий этот инструмент, а также надо обладать умениями работать с металлом. Во время процесса следует быть острожным и аккуратным, чтобы не навредить себе, а также получить идеальный результат работы.
Циркулярка своими руками производится с применением следующих компонентов:
- профильная труба прямоугольной формы;
- уголки, сформированные из стали;
- двигатель.

Методика проведения работ

Изготавливая стол для циркулярной пилы своими руками, на следующем этапе можно примерить пилу и скорректировать ее положение при необходимости. Затем места крепления размечаются, как и прорезь для зубчатого диска. Если распил материала будет выполняться под разным углом, то при разметке прорези этот момент необходимо учесть. В этом случае отверстие будет иметь трапециевидное сечение, фигура при этом должна располагаться вершиной вниз.
Внизу рабочей поверхности с помощью линейки и карандаша необходимо выполнить разметку для ребер жесткости. К ним позже будут фиксироваться ножки стола. Рёбра следует изготовить из доски, размеры которого равны 50 x 100 мм. Эти элементы располагаются по периметру, однако от краев стола их необходимо удалить на 10 см.
Доску следует приложить к поверхности и обвести с обеих сторон, затем по линейке размечается центральная линия, на которой будут располагаться саморезы. От каждого края ребра их необходимо удалить на 5 см, расположив с шагом в 20 см по всей длине. Изготавливая в стол для циркулярной пилы своими руками, по разметке необходимо просверлить отверстие насквозь.
Для продольных ребер жесткости следует выполнить разметку, распилив доски. Их фиксируют к столешнице на столярный клей, а после поджимают струбцинами. По месту боковые ребра жесткости размечаются, их необходимо распилить и приклеить. Конструкцию следует дополнительно затянуть саморезами, не снимая струбцин. Для них подготавливаются отверстия с внешней стороны, чтобы шляпки оказались полностью утоплены. Ребра жесткости стягиваются между собой с помощью саморезов, устанавливаемых с каждой стороны. Струбцину можно снять, что позволит понять, как будет выглядеть столешница.
Что необходимо для создания
Чтобы приступить к работе, необходимо тщательно подготовиться.
Материалы и инструменты
Для самодельного стола потребуется прочное металлическое или деревянное основание. Некоторые мастера предпочитают делать столы из алюминия, стали.
Работать с большими объемами древесины обычной циркуляркой сложно, поэтому ее лучше установить на стол.
Важно! Древесину обязательно обрабатывают специальным средством, которое обладает антисептическим составом, чтобы предотвратить процессы гниения. Материалы, которые потребуются в процессе работы:
Материалы, которые потребуются в процессе работы:
- основа, толщина которой не меньше 22 см;
- брусья для усиления и изготовления опоры (можно использовать обрезную доску в количестве 5 штук);
- деревянные шканты, размером в 10 см (для работы потребуется 12 штук и больше);
- столярный клей;
- крепежи из металла (не меньше 4 штук, а точное количество зависит от габаритов и длины стола);
- металлические уголки в количестве 10 штук;
- саморезы.
Перед работой нужно подготовить инструменты. Для отметок берут карандаш или маркер, метр, рулетку, электрический лобзик, фрезер ручной модели. Чтобы обработать дерево, потребуется шлифовальная машина, наждачная бумага разного уровня зернистости, которая убирает зазубрины.
Современный электролобзик оснащается встроенным средством защиты, электронными регулировками скорости, гасителями уровня вибрации и шума.
Также необходим рубанок, дрель и шуруповерт. Материалы и инструменты готовят заранее, располагают на рабочем месте.
Дело пойдет куда легче, если пользоваться шуруповертом.
Определение дизайна и конструкции
Чтобы выбрать дизайн, необходимо определиться с материалом основания. Для деревянных столешниц подходят листовые породы деревьев, которые отличаются устойчивостью к процессам гниения при правильной антисептической обработке. В основании делают специальное отверстие под диск.
Стол для дисковой пилы можно соорудить самостоятельно, точно придерживаясь определенной схемы.
Для деревянного основания используют крепкую станину из четырех козлов, досок размером в 50х150 мм. Она должна быть устойчивой для обеспечения безопасности. Для работы не подходят кривые или гнутые листы металла, потому что существует высокая вероятность получения травмы.
Сооружение собственными руками элемента позволяет сделать пилу максимально подходящей под индивидуальные условия.
Можно сделать простую конструкцию или оснастить ее расклинивающим ножом съемной конструкции. Дополнительно выполняют дисковую защиту, чтобы рабочая стружка не летела на человека, который будет работать за столом. Чтобы делать распил под углом, необходимо добавить детали для регулирования наклона диска.
Можно подогнать изделие по нужному размеру, распределить все так, чтобы удобно было именно вам.
Для циркуляции делают направляющую каретку стола. Она включает в себя следующие элементы:
- направляющие брусья;
- фанеру;
- пропил;
- бортики для надежного упора;
- планка съемной конструкции.
После выбора дизайна конструкции, необходимо сделать чертежи стола для дисковой пилы своими руками.
Собственноручно созданная модель будет единственной в своем роде, что делает ее уникальной.
Чертежи и схемы
Обратите внимание! Чертеж нужен для предотвращения ошибок в процессе работы. В первую очередь делают расчет размеров, чтобы перенести их на картон
В нем делают отверстие, которое должно подойти к габаритам пилы. Перед созданием чертежа и схемы нужно купить режущий инструмент. Универсальные отверстия в этой конструкции не предусматриваются, потому что они не смогут обеспечить максимальную устойчивость, безопасность и выдержку больших нагрузок
В первую очередь делают расчет размеров, чтобы перенести их на картон. В нем делают отверстие, которое должно подойти к габаритам пилы. Перед созданием чертежа и схемы нужно купить режущий инструмент. Универсальные отверстия в этой конструкции не предусматриваются, потому что они не смогут обеспечить максимальную устойчивость, безопасность и выдержку больших нагрузок.
Сделать стол для циркулярной пилы вполне по силам каждому мастеру.
Можно оставить немного дополнительного места для инструмента или деревянных заготовок. Подходящие габариты: 120х120 см.
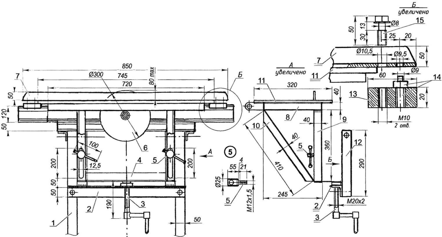
Пример чертежа столика для циркулярной пилы:
Сложностей в процессе не возникнет, если тщательно изучить вопрос.
Схема с подробным описанием и размерами:
Стол изготавливают с учетом того, что ручной инструмент будет установлен и закреплён на столе, превратившись при этом в стационарное оборудование.
Стационарный станок собственными руками
Для выполнения повседневных или одноразовых задач вполне сгодится циркулярка, изготовленная своими руками. Распилочные работы небольших объемов не подразумевают сильные нагрузки на привод диска. Компактный инструмент имеет малые габариты, что дает возможность убрать его после окончания работ в определенное место. Для опытного столяра потребуется сделать циркулярку стационарного типа больших размеров.
Стол для циркуляции
Основным условием при изготовлении стола является выбранный материал. Рекомендуется применять цельный стальной лист, дюралевый или из сплава силуминов. Такие материалы, как влагостойкая фанера, оргстекло и текстолит требуют обработки и установки поверх оцинкованного листа. Применение любого материала при изготовлении должно отвечать главным условиям:
- повышенная виброустойчивость;
- недопустимо прогибание при нагрузке свыше 50-60 кг;
- наличие идеально ровной поверхности.
В тех случаях, когда условия не соблюдаются, циркулярка, сделанная своими руками, может остановиться из-за заклинившего диска или сломанного привода. Последствия могут быть различными, от испорченной детали до полученных увечий человеком.
Известно несколько вариантов для изготовления стола циркулярки. Стационарные столы можно пропилить или изготовить из двух частей. Диск циркулярной пилы должен выступать не более, чем на треть от своего диаметра.
Пильный диск
Пильный диск
Конструкция изготовленной циркулярки своими руками должна содержать пильный диск. Рабочая поверхность диска устанавливается на треть от общего диаметра. Например при диаметре 210 мм, диск должен выступать от стола на 70 мм. Детали с большей толщиной потребуют мощного двигателя, от 1 кВт. Миниатюрная циркулярная пила не справится с такими задачами.
Раскалывающий нож, установленный на некоторых моделях служит для предотвращения замыканий и заклиниванию при работе. Располагается сзади на несколько миллиметров от зубьев пильного диска. Устройство может понадобиться и при изготовлении циркулярки своими руками.
Боковой упор с возможностью регулировки
Любые виды работ потребуют наличие упора. Боковой упор изготавливается из бруска плотных пород дерева. В других случаях, возможно изготовление из металлического уголка. Расположение должно быть немного длиннее конструкции стола. Установка упора производится с помощью болтов. Шаблон устанавливается между столом и резаком, для точной установки, более качественной настройки.
Вал
Самодельный вал
Наиболее ответственной деталью конструкции является вал, устанавливаемый на циркулярку. Изготовленный вал для циркулярки своими руками может испортить конструкцию, нанести травмы. Причиной этому служит биение, которого невозможно избежать при изготовлении вала кустарными методами. Изготовление вала стоит доверить специалисту с хорошим токарным оборудованием. Следует помнить о наличие резака, которому необходимо посадочное место. Отверстия должны быть симметрично изготовлены на станке и обработаны.
Готовые валы продаются на специализированных рынках. Следует отдавать предпочтение деталям с наличием само устанавливающегося подшипника. В противном случае, обычный механизм может в скором времени привести в негодность циркулярку.
Передача
Существует несколько видов передач, которые возможно использовать в конструкции циркулярки, изготовленной своими руками:
- клиноременная передача;
- механизм, состоящий из шестеренок.
Предпочтительным вариантом считается использование ременной передачи. Использование механизма с шестерёнками может привести к заклиниванию при попадании инородного тела и нанесению травм работнику. При выборе диаметра шкива, учитывается максимальное количество оборотов распилочного диска.
Мотор
Электромотор для циркулярки
Самодельные станки комплектуются в большинстве случаев двигателем от старой стиральной машины. Основными особенностями является повышенный срок службы и КПД. Обороты таких двигателей не высоки, что делает работу на циркулярной пиле, собранной своими руками более безопасной, продолжительной, оказывает положительное влияние на результат. Использования специального трехфазного двигателя подразумевает наличие сети 380 Вольт. Если таковой не имеется, придется использовать пусковой и рабочий конденсатор, что приводит к дополнительным затратам.
Материалы
Как же сделать станок под циркулярку своими руками? В первую очередь нужно выбрать материалы.
Столешница
Ключевым требованием к столешнице считается стойкость к повышенным нагрузкам, вибрациям и ударам
Важно, чтобы поверхность была достаточно гладкой и не гнулась под воздействием веса в 50 кг. К оптимальным материалам относят следующее:
- металл — допустимо воспользоваться сталью или дюралюминием;
- ЛДСП или фанера, которая отличается стойкостью к влаге;
- текстолит.
Не стоит делать столешницу из пластика, ДСП, ОСП. Такое сырье считается неустойчивым к вибрации. Использовать натуральное дерево допустимо. Но в этом случае конструкция получится очень дорогой.
Станина
На основании стола можно установить деревянные брусья. Их рекомендуется закрепить под крышкой с целью повышения жесткости. Лучше всего использовать брусья из твердых пород древесины — бука или дуба. Они отличаются невысокой стоимостью и простотой крепления при помощи саморезов.
Мотор
Специалисты советуют использовать двигатель мощностью не более 1000-1200 Вт. Иначе применение устройства может быть опасным. К тому же для мощной пилы требуется более тяжелый и стойкий стол.
Передача вращения
Для сооружения допустимо использовать ременную передачу. В этом случае вращение передается на рабочий вал с помощью клинового ремня. Шкивы на станке могут совпадать по размеру. Потому скорость вращения рабочего вала будет такой же, как и у двигателя.
Самодельные приспособления
Циркулярную пилу сделать не так сложно, проблемы могут возникнуть при подгонке узлов. Правильно подобрать все элементы, чтобы они работали безупречно, – это важная задача. Вал должен иметь саморегулирующиеся подшипники, если агрегат используется ежедневно. Сами подшипники лучше всего подбирать с двумя рядами шариков, которые будут регулироваться с помощью зажимной гайки.
Рабочая поверхность обязательно должна иметь «сетку»-разметку. Без этой системы координат точная работа по дереву довольно затруднительна. Нельзя пренебрегать защитным кожухом – во время работы он надежно предохраняет устройство от механических повреждений. Циркулярная пила при работе с различными материалами работает в разных режимах, поэтому желательно иметь устройство, которое управляет подобным процессом. На валу следует делать несколько желобов, чтобы была возможность переставлять шкивы, таким образом меняя скорость.

Когда приходится распиливать бруски или совершать несколько пропилов с разных направлений, требуется упор, который имеет конфигурацию «П». В его основании лежит доска толщиной 30 мм. К основанию прикручиваются боковины толщиной 12 мм. Таким образом, упор инсталлируется на брус, размер которого от точки разреза отвечает размеру до режущего диска. С двух боков он прижимается к брусу фиксаторами. Если брус слишком массивный, то его переставляют и делают еще один пропил.

Также существует кромочный упор, который востребован. Чтобы его сделать, требуется большое количество времени и хорошая квалификация мастера. Обязательно перед началом работы следует сделать схему-чертеж. Делается этот упор из фанеры (20 мм), также из этого материла изготавливается и упорная планка. Фазы изготовления:
- прорезаются продольные пазы для шпонок;
- шпонки монтируются на упорной планке;
- между сделанными пазами прорезается еще один паз, чтобы закрепить упорную планку;
- в основании делается еще одно отверстие, его размер соответствует пильному резаку циркулярной пилы;

Монтируются боковины-ограничители, причем обязательно должны быть фиксаторы, чтобы ее надежно закреплять. Чтобы поставить упор на заготовку, планка двигается в пазах и фиксируется через щель струбцинками. Лучше всего сразу закрепить линейку или рулетку на станине – это намного облегчает работу. Толкатель удобен для работы с небольшими заготовками – он позволяет закреплять деталь с двух сторон, что обеспечивает точность в работе
Важно также сделать:
- лифт;
- расклинивающий нож;
- подъемный механизм.
Конденсаторы рассчитываются по такой схеме: на 1000 ватт приходится 100 мкФ для конденсатора рабочего типа. Емкость пускового конденсатора надо заказывать в два раза большей. Следует помнить, что пусковой блок SB – это приспособление, которое автоматически возвращается в первоначальное положение. Это очень удобно, так как буквально через считаные секунды после старта можно начинать рабочий процесс.

Возможные неисправности и ремонт
Рассмотрим часто встречающиеся неисправности.
Расхождение поверхностей в боковом упоре
Поверхности бокового упора сходятся под каким-то углом или расположены в разных плоскостях. Это сильно влияет на точность пиления. При запиливании справа или слева получается разный результат.

Нарушена точность пиления
Необходимо выявить кривой элемент: диск или фланец. Эту операцию нельзя производить путём запуска двигателя от сети. Во-первых, вы рискуете получить серьёзную травму, во-вторых, при запущенном двигателе этот метод не работает.
- Отключите пилу. Поднимите защитный кожух.
- Возьмите маркер и приставьте его к боковой поверхности диска. Держите маркер ровно. Вращайте диск до полного оборота.
- Заблокируйте шпиндель и ослабьте диск. Проверните на 180 градусов. Затяните его.
- Возьмите маркер другого цвета и повторите рисование окружности рядом с предыдущей.
- Посмотрите, где расположены полукольца. Если они находятся на одной и той же части диска, значит, он кривой. Замените диск на новый. Если полукольца на противоположных сторонах, то проблема с фланцем.
- Снимите диск и фланец. Фланец представляет собой опорную шайбу, которая крепится на валу вместе с диском. Опорная и посадочная плоскости должны быть параллельны. Опорная площадь формируется токарной обработкой.
- Со снятым диском и фланцем пила совершенно безопасна. Запустите её от сети.
- Возьмите простой карандаш и прикоснитесь к поверхности, чтобы почувствовать, есть ли биение. Металлическим предметом этого не делайте, так как нарушите точность обработки поверхности. Если есть биение, то нужно менять вал.
- Если биения нет, то поставьте фланец и прикрутите его винтом. Снова возьмите простой карандаш, запустите пилу и коснитесь фланца. Если биение присутствует, фланец надо проточить.
- Для этого возьмите брусок и пилку для ногтей. Брусок закрепите струбциной внутри кожуха. Он будет являться опорой. Запустите двигатель и воткните пилку остриём в брусок чуть дальше от фланца. Постепенно подведите пилку к фланцу. Делать это нужно аккуратно, чтобы пилочка снимала малое количество металла. Пилку подводите не плоскостью, а выгнутой частью и начинайте от центра к периферии. Эта задача долгая и нудная, но работает на 100%.
Ремонт двигателя и редуктора
На наличие поломок в двигателе или редукторе указывают следующие факторы:
- не крутится диск, а двигатель работает;
- запах гари;
- искрение в области двигателя;
- пила не набирает мощность;
- инструмент работает нестабильно.
При наличии хотя бы одного из этих признаков приступайте к разбору.

Конструкция стандартной циркулярной пилы




«Настоящая» стационарная циркулярка

Стол для циркулярки своими руками, чертежи которого имеются в свободном доступе, создается легко и быстро, если хорошо знать его конструкцию. Если отдельно сформировать и подготовить все компоненты, то в результате они просто надежно и крепко соединяются друг с другом, обеспечивая получение оптимальной конструкции.
К основным элементам данного оборудования относится:
- Стол. Обычно он покрывается листом, созданным из оцинкованной стали или жести. Не допускается применять для этих целей пластик или древесину, поскольку эти материалы не смогут выдерживать существенного воздействия других материалов, поэтому протрутся, в результате чего будет получены деформации, изгибы и отверстия.
- Поперечные связи. Они создаются для стола, причем обычно для этих целей применяется уголок из стали, толщина которого равняется примерно 7 см. Данные связи оснащаются полкой, прикрепляющейся снаружи в горизонтальном положении. В этом случаи обеспечивается легкость формирования бокового ограничителя.
- Рабочий орган циркуляционной пилы. Он представлен зубчатым диском, который выступает за пределы стола, поскольку это обеспечивает хороший процесс пропиливания разных элементов.
- Мотор оборудования, который должен быть достаточно мощным. Его выбор зависит от диаметра пилы. Если предполагается работать с пиломатериалами, толщина которых превышает 15 см, то выбирается очень мощный мотор, поэтому и процесс создания циркулярки будет достаточно сложным, поскольку найти этот элемент в свободном доступе трудно.
- Боковой упор. Делается он регулируемым, причем используется для его создания ровный кусок уголка из стали, толщина которого равняется примерно 7 см. Данный упор по длине должен быть больше длины стола примерно на 35 см. Одна вертикальная полка с каждой стороны обрезается, поэтому она получается равной длине стола. Хвосты, являющиеся плоскими, изгибаются вниз. В нижних их полочках формируются отверстия для резьбы. Упор прикрепляется к столу болтами, причем он выставляется ровно по шаблону.
- Вал. Является важным элементом оборудования, причем желательно приобрести его в готовом виде, чтобы он обладал высоким качеством и надежностью. Обычно готовый элемент обладает специальным посадочным местом, предназначенным для диска будущей пилы.
- Подшипники. Они могут быть разными, но самым оптимальным выбором считаются самоустанавливающиеся элементы, которые являются шариковыми. Они оснащены двойным рядом из специальных шариков. Внутри обойма в разрезе является криволинейной. Если же применять в самодельной циркулярке дешевые и некачественные подшипники, то они не прослужат слишком долго. Цапфы оснащаются крышками, предотвращающими попадание в подшипники опилок.
- Передача пилы. Обычно выбирается клиноременная конструкция, поскольку если выбрать шестеренчатую, то она считается достаточно опасной для применения любителем. Это обусловлено тем, что если используется пиломатериал, который ранее уже применялся для других целей, то в нем может попасться гвоздь или другой крепежный элемент, который при попадании на передачу может способствовать тому, что диск двигателя просто разлетится.
- Передаточное число. Выбирается оно в зависимости от параметров двигателя, а именно от его оборотов и от частоты вращения диска.
- Двигатель. Лучше всего выбирать асинхронный двигатель, являющийся однофазовым. Обычно такими элементами оснащаются стандартные стиральные машинки. Они идеально подходит для самодельной циркуляционной пилы. Не желательно пользоваться коллекторными двигателями, которые обычно устанавливаются в разных электрических приборах, поскольку они дают чрезвычайно существенные обороты, а также не могут работать слишком долго, что считается важным для циркулярки.
- Трехфазный двигатель используется часто, однако он дополняется пусковым и рабочим конденсатором, которые оснащаются арматурой. Они обладают существенной стоимостью, причем они должны быть либо масляно-бумажными, либо просто бумажными.
- Схема запуска двигателя, которая может применяться для треугольника или звезды, причем она не должна нуждаться в дополнительной доработке.
Таким образом, процесс создания своими силами циркуляционной пилы считается достаточно сложным, однако если знать, из каких основных элементов состоит оборудование, а также выбрать качественные элементы, надежно и безопасно соединяющиеся друг с другом, то работа будет правильно выполнена самостоятельно.
Преимущества самодельной техники
Большой популярностью самодельные циркулярки пользуются за счёт простоты своего изготовления, долговечности и надежности. Сегодня многие дачники используют самодельные агрегаты, а не покупают дорогую технику в специализированных магазинах.
К основным преимуществам такой техники можно отнести следующее:
- Универсальность инструмента.
- Простота его изготовления.
- Возможность существенной экономии.
- Надежность и долговечность оборудования.
Имеющиеся в интернете и тематических печатных изданиях схемы исполнения стационарных и мобильных циркулярок позволяют изготовить технику для обработки как тонких заготовок, так и толстых пиломатериалов. Можно подобрать простейшие варианты, которые отлично справляются с обработкой вагонки, тонких ламелей и фанеры.
Порядок сборки
Самодельная циркулярная пила своими руками легко может быть собрана при наличии в домашней мастерской ненужной болгарки.
Для произведения полной сборки аппарата нужно подготовить следующие материалы и инструменты:
- болгарка;
- алюминиевый угол;
- гайки;
- металлический прут или труба;
- металлическое полотно;
- упор для скольжения (нужно собрать);
- осевая рукоятка (нужно сделать).
В первую очередь сооружается упор с необходимыми отверстиями. Его конструируют, используя короткие части уголка из металла. Обрезки угла будут располагаться с двух сторон от зубчатого диска.
Для них по бокам необходимо сделать выемки глубиной от 0,2 до 0,5 см. Чтобы нижние кромки уголков не соприкасались с разрезаемым элементом, их следует сгладить.
Детали крепятся сзади и спереди поперечными связками с помощью гаек и болтов.
Видео:
https://youtube.com/watch?v=K2u3zO1l9EY
Схема сборки упора не сложная. На корпус надевают металлический хомут, стяжку которого производят снизу устройства.
Затем готовят отверстие, через которое изделие крепят хомутом, для заднего крепления, которое фиксирует упор для последующего скольжения.
В редукторе аппарата высверливают отверстия с нанесенной резьбой, в которые будут крепиться небольшие детали.
В начале работы редуктор разбирается для определения подходящего места, на котором будут выполнены углубления.
Выемки требуются для последующего крепления осевой рукоятки. Если будет использована ручка, расположенная сбоку у обыкновенной болгарки, то выполнить отверстие будет довольно сложно.
Если рукоятка выполнена в виде рога, то дальний ее конец следует расплющить и проделать углубления под ось. В выемки, находящиеся в редукторе, вставляют направленную вперед деталь. Края детали прижимают.
Используя подкладку шайбочек под переднюю часть упора, равняют параметры зазора по всей продолжительности циркулярной пилы.
Если применяется штанга 0,6 см, то понадобятся тонкие шайбочки. На задней части штанги наносят резьбу.
Затем деталь помещают в выемку на рукояти. Теперь приспособление готово к использованию.
В процессе эксплуатации циркулярной пилы нужно соблюдать правила техники безопасности, особенно нельзя пить алкогольные напитки, так как их употребление приводит к нарушению координации.
Торцовка из болгарки

торцовочная пила из болгарки
Технические характеристики торцовки с протяжкой, собранной своими руками:
- обороты диска — 4500;
- длина пропила — 350 мм (намного выше, чем у заводского инструмента среднего класса).
Инструмент можно снять со стола и использовать болгарку по обычному назначению.
- Поворотное устройство инструмента устанавливается на ось поворота автомобильного колеса (шкворень), он удерживается шарикоподшипником на 150 мм (если получится найти больше — подойдет).
- На наружную сторону подшипника сваркой крепим ушки для фиксации на основании. Фиксируется он посредством винтов М6.
- Для предохранения от стружки обойма прикрывается коробом.
- Протяжку делаем из амортизаторов от грузовика (подойдут сломанные). Из них выливается масло, просверливаются отверстия для вентиляции, которые следует затянуть сеткой от пыли и стружки.
- Чтобы при начале работы не ощущался рывок, пила дополняется модулем плавного пуска, который слегка уменьшает оборотистость.
- Последний этап работ — изготовление защиты для диска.
- очень шумно работает;
- для регулировки точности пропилов дерева используют обрезки брусков, после чего тяга фиксируется жестко и можно работать начисто.
Этапы изготовления
Для примера работ взят случай, когда основанием для станка послужил старый стол. Если такого нет, то перед далее описанными работами, нужно изготовить еще основу. Используются бруски одинаковой длины для ножек, конструкция усиливается поперечными элементами. Основание должно получиться прочным и устойчивым, чтобы выдержать активную эксплуатацию. После этого начинаются работы со столешницей.
Этап первый
В соответствии с ранее подготовленными габаритами вырезается рабочая поверхность. Кстати, можно применять даже старую столешницу с, например, кухонного стола. Главное, чтобы материал был прочным и выдерживал все механические нагрузки.
Важная характеристика – толщина столешницы. Столяры говорят, что лучше всего, когда толщина 2 см. Такая столешница будет прочной, из какого материала она не была бы сделана, и оставит большую рабочую поверхность пилы. Проще говоря, чем больше диск «торчит» из станка, тем глубже он сможет пилить.

Кромки доски при возможности стоит отфрезеровать и отшлифовать
Это важно не только для красивого внешнего вида конструкции, а и для ее долговечности и комфорта работы. Да и заноз никому не хочется
Этап второй
В столешнице делается отверстие для циркулярной пилы. Помним, что оно должно соответствовать размерам диска. Также на поверхности столешницы нужно начертить место установки и крепления пилы.

Этап третий
Проделываются отверстия в рабочей поверхности для ее закрепления к основанию. Столешница переворачивается. Чтобы прочно соединить эти две части станка применяют саморезы и стальные уголки. Кстати, чтобы потом удобнее был процесс установки пилы, столешницу можно сразу не закреплять.
Этап четвертый
Обустраивается система электропитания и включения аппарата. Конструкция предусматривает, что пила будет всегда включенной, поэтому нужны хомуты для фиксации соответствующей кнопки. Запуск и остановка станка будет контролироваться включением и выключением электропитания. Поэтому потребуется обычный выключатель, кабель, и розетка.

Внутри устанавливается розетка, от нее выводится шнур питания для выключателя. Именно выключатель и будет запускать или останавливать станок, поэтому он должен быть под рукой, чтобы в случае аварийной ситуации мастер мог одним нажатием быстро выключить пилу. Подключается все это к ближайшей розетке в рабочем помещении.
Этап пятый
Изготавливается каркас для удобной работы с поперечным распилом. Сделать такую каретку можно из тонкого основания и двух невысоких стенок. Для этого подойдет дерево и фанера. Чтобы конструкция была подвижной, подготавливаются направляющие для стола. Это могут быть небольшие части стальной трубы с сечением 2×1 см. Монтируются отрезки труб в пазы, которые предварительно вырезанные фрезером. Такая простая конструкция значительно повысит возможности и комфорт станка.

Этап шестой
Точность работ важна, поэтому стан обязательно оснащают разметочной линейкой. При помощи фрезера делается небольшой паз для установки линейки. Если такого инструмента нет, то паз можно подготовить стамеской. Поверхность столешницы тщательно обрабатывается шлифовочной машинкой и наждачной бумагой. Линейку зафиксировать удобнее всего при помощи самонарезных болтов. Эта модификация позволит делать распил материала с точностью до миллиметра.

Дополнительные улучшения конструкции
Для удобного пользования станком проводятся улучшения конструкции. Часто устанавливают емкость под сбор стружки, стойка с пылеотводом для более чистой работы. Рабочую поверхность можно сделать раскладной, что экономит пространство, и даже подъемной, что обеспечит быстрый доступ к пиле.
Некоторые умельцы снимают кожух с инструмента, из-за чего доступна большая рабочая поверхность диска пилы. Подготавливается и специальный брусок для толкания досок
Это важно для безопасности. Чтобы не потерять этот брусок, под него делается специальная подставка или выдвижной ящик

























































