Какую дизельную печь выбрать?
При выборе печи для гаража, которая питается дизельным топливом, следует учитывать ряд характеристик, таких как мощность печки, материал изготовления, возможность использования в разное время года, фактор цены и т.д.
Критерии
Мощность
Важный параметр, ведь чем печь мощнее – тем большую площадь помещения она сможет быстро и качественно обогреть. В среднем, для обогревания 10 кв. метров помещения нужно затратить 1 кВт энергии.
Исходя из этих данных, и зная площадь помещения своего гаража, можно рассчитать, печь какой мощности необходимо приобрести или изготовить.
Материал изготовления
Подобные устройства выполняются, в основном, из стали – металлических листов и уголков с помощью сварных соединений. Существуют еще самодельные печи капельного типа, которые изготавливаются из труб или старых газовых баллонов.
В качестве чаши, где происходит горение, используется нижняя полусфера такого баллона, а топливный бак вынесен за пределы корпуса, дизельное топливо к очагу пламени дозировано поступает по трубке из металла, что исключает самовозгорание.
Фактор цены
Цены на дизельные печки для гаража достаточно невысоки, также как на солярку или мазут, а отработанное масло есть под рукой у каждого автолюбителя. С экономической точки зрения, подобное устройство отопления будет самым оптимальным вариантом.
Цены на печи с использованием солярки начинаются от 3000 рублей. Дизельные печи, работающие на мазуте или отработанном масле, стоят несколько дороже.
Прочие моменты
- Важным моментом является наличие у печки смотрового окна (заглушки). Это позволяет контролировать процесс горения и увеличивать или уменьшать подачу воздушной смеси в отсек, где происходит сгорание топлива.
- По своим габаритам и способу установки, дизельные печи могут быть как большими стационарными, так и малыми переносными. Выбор здесь огромен и каждый может подобрать агрегат, исходя из своих конкретных потребностей, целей и задач.
- Multeat Eco 18. Модель работает на использованном машинном масле. Стоимость ее составляет 21500 рублей. В комплект печи не входит топливный бак, в качестве него можно использовать любой резервуар с краном и топливным фильтром. Есть система контроля подачи топлива в тарелку для горения.
- Солярогаз ПО-2.5 Компактная и недорогая печь, работающая на солярке. Она обойдется покупателю всего в 3300 рублей и способна обогреть помещение площадью до 25 кв. метров, ее мощность 2.5 кВт. Пользуется большой популярностью у туристов-походников, дачников и владельцев малых гаражей.
- Рица. Бюджетный вариант печи, работающей на масляной отработке. При способности к обогреву площади до 150 кв. метров, ее цена составит всего 7000 рублей. Имеется дымоход и емкость для топлива объемом 10 литров.
- Polarus. Мощный отопительный агрегат для помещений большого объема, используемое топливо – отработанное машинное масло. Эта печь мощностью 60 кВт способна нагревать 3000 кубических метров воздуха в час. Цена – 65000 рублей.
- Multeat MUL. Еще один солидный аппарат для больших площадей в виде конвекционной печки, работающий на старом машинном масле. Его стоимость – 56500 рублей. Multeat MUL способен работать как на отработке, так и на смеси солярки с маслом. Рекомендуется для помещений объемом до 800 кубических метров.
О безопасности
Даже «правильная» самодельная печь на солярке с точки зрения правил пожарной безопасности не существует – ППБ прямо запрещают использование самодельных отопительных приборов на жидком и газообразном топливе. Само наличие такого агрегата в домашнем хозяйстве делает любую страховку от пожара, взрыва и отравления летучими веществами недействительной, а его владельца и, возможно, изготовителя, виновным во всех последствиях какого бы то ни было происшествия из-за печи. Поэтому задача изготовления самодельной дизельной печи сводится к чисто техническим мерам обеспечения ее безопасности; формальная сторона – полностью ваш риск.
О парах солярки следует упомянуть подробнее. Они не просто вонючие, они токсичны, канцерогенны и пропитывают даже старый бетон. Поэтому для жилых помещений, хранилищ пищевых продуктов, теплиц, помещений для содержания домашнего скота и птицы однозначно пригодна только и только сертифицированная к данным условиям эксплуатации дизельная печь промышленного производства, причем не стационарная для временного использования.
Стационарные отопительные приборы на жидком топливе для индивидуального дома выпускаются и могут быть изготовлены самостоятельно с учетом – см. выше. Но в таком случае они обязательно должны быть двухконтурными, т.е. передавать тепло от сгорания топлива теплоносителю, и располагаться в несгораемой пристройке с отдельным, т.е. с улицы, входом.
Примеры конструкций
Буржуйка
Легче всего переделать под солярку печку-буржуйку. Тепловая мощность будет до 5-7 кВт при расходе топлива 300-500 мл/час. Топливная аппаратура той же конструкции практически без изменений может быть использована в более мощных отопительных котлах на дизеле, а также для запуска на отработке и керосине.
Схема доработки буржуйки под дизтопливо дана на рис. ниже. Дефлекторы не дают парам горючего остыть, прежде чем те сгорят. Кстати, дефлекторы увеличивают экономичность печи при запуске на дровах и угле. Высота бортика пламенной чаши – 60-80 мм; емкость ее не должна быть меньше емкости питательного резервуара (см. ниже). Ход печи на жидком топливе, если можно так выразиться, обратный: воздух поступает в настежь открытую дверцу топливника; поддувало закрыто. В противном случае печка становится прожорливой и быстро закоксовывается (обрастает нагаром).

Как переделать буржуйку на жидкое топливо
Питание, запуск и ход
Печь-капельница на солярке будет достаточно безопасной и проявит все свои достоинства только если топливная аппаратура собрана и налажена правильно. Выполняется питание капельной печи обязательно 2-ступенчатым, с буферным питательным резервуаром. Причина – довольно сильная зависимость частоты капели от наружной температуры и напора в подводящем трубопроводе. Напор, в свою очередь, определяется уровнем топлива в баке или степенью его наддува. Закапало реже – испаритель остыл, печка погасла, чаша переполнилась и топливо потекло наружу. Закапало чаще – капли не успевают испаряться, в чаше коптящее пламя, печка зря жрет горючку. Если нет питательного резервуара, может дойти вообще до беды: из печки потечет пылающая струя. Поэтому изготовление и запуск печей на жидком топливе с одноступенчатым питанием – занятие для оголтелых экстремалов или тех, кому терять больше нечего, а спать очень хочется.
Оба капилляра (см. рис.) выполняются из красной меди. Тут дело в смачиваемости металла топливом: по узкой трубке из другого материала оно или вовсе не просочится, или систему питания не удастся наладить. Налаживание начинают с подбора длины предохранительного капилляра диам. 1,5 мм. Объем питательного резервуара необходим 0,25-0,5 л; его высота – 7-12 см. Длину предохранительного капилляра подгоняют так, чтобы при заполненном до верха питательном резервуаре частота капели была 25-30 капель за 10 с.
Далее подгоняют питательный капилляр диам. 0,6 мм; топливо в баке должно быть залито на полный напор H. При полностью открытом игольчатом вентиле и минимально допустимой наружной температуре частота капели из топливопровода в питательный резервуар должна быть на 2-3 капли за 10 с меньше. Эту же частоту капели выставляют игольчатым краном при запуске печи при более высокой наружной температуре.
Для запуска печи в огневую чашу кладут сгорающий фитиль (см. выше). Когда он прогорит, как надо, наливают топливо в питательный резервуар и пускают капель из топливопровода. Печка будет на ходу 4-5 час; если время обогрева требуется меньшее, игольчатый вентиль прикрывают. Только от питательного резервуара ход печи продлится 1-1,5 час.

Чертежи печи с каменкой, пригодной для доработки на солярку
Для гаража
Печь на солярке и отработке для гаража
Печь на солярке для гаража должна запускаться и на отработке. Оптимальная конструкция гаражной чудо-печи показана на рис. справа; пламенная чаша под капель (выдвинута) является одновременно и емкостью для безнапорного сгорания масла. Мощность – до 5 кВт на одну колонну-дожигатель (райзер), но делать печку более чем на 2 райзера недопустимо, может взорваться! Данные конструкции:
- Материалы – квадратная профтруба 180х180х6 для лежака (камеры сгорания) и дожигателя, и 100х100х6 для райзеров.
- Длина лежака 380 мм, дожигателя 1000 мм, высота райзеров 500 мм.
- Отверстия в райзерах диаметром 10 мм на всех 4-х сторонах по 8 равномерно по оси.
- Для запуска печи на отработке питательный резервуар необходимо отсоединить, а патрубок капельницы снаружи заглушить.
- Отдельный дефлектор не нужен, им служит крышка лежака.
Печь на солярке для гаража
Печь капельница актуальна для подвалов, маленьких помещений, дачного домика, гаража, теплицы, где отсутствует отопление и электричество.
Построить печь своими руками – достаточно доступное и не затратное занятие. О том, как сделать печь капельницу на солярке самостоятельно, пойдёт речь в нашей статье.
Отличительные особенности
У печки, собранной своими руками, имеется ряд преимуществ:
- она экономит топливо;
- по желанию можно сконструировать печь любого размера, которая будет наиболее подходящим вариантом для данного помещения;
- легко транспортируется;
- простота в использовании;
- печь капельницу можно использовать для приготовления еды. Для этого при конструировании печки трубу размещают сбоку.
Схема печи капельницы на солярке. Это очень экономичная конструкция. В печной камере происходит полное сгорание соединений
При изготовлении печи капельницы своими руками, нужно соблюдать технику пожарной безопасности:
- аппарат должен располагаться в помещении без сквозняков;
- легковоспламеняющиеся предметы должны отсутствовать вблизи печки, желательно наличие свободного пространства рядом с ней (около полуметра);
- нельзя применять воду для тушения или охлаждения печки.
Материалы, которые понадобятся для строительства печи:
Основные инструменты, которые пригодятся для работы – это сварочный аппарат, дрель и струбцина.
Популярный аппарат, сделанный своими руками – это капельная печка из газового баллона
Принцип работы устройства
В нижнем резервуаре топливо закипает спустя пять минут работы. Пары масла поступают в следующий отсек, который называется горелка. Там, для лучшего сгорания, пар обогащается кислородом.
Принцип капельной подачи отработки в чашу (для увеличения нажмите на картинку)
Затем, продукты сгорания поступают в верхний отсек, а оттуда в дымоход. Наиболее высокая температура в верхнем модуле капельной печи.
Самостоятельное изготовление
Для этого понадобится бак не менее объемом 2 л. Дыма и сажи не будет во время эксплуатации печки. В процессе розжига печки – будет, поэтому этот процесс рекомендуют проводить на улице.
В фитильную чашку поступает солярка из топливного бака. С помощью дозатора можно регулировать количество поступающего топлива. В чашке сгорания топливо нагревается до образования газообразной смеси, которая далее поступает в камеру сгорания. Спираль, которая находится вверху камеры, нагревается до температуры 800 °С. Дым улетучивается через дымоход.
Можно самостоятельно смастерить аппарат массой шесть килограмм. Солярка является топливом с достаточно высокой плотностью, поэтому ее расходование минимально. В целом, такая печь – это эффективная и легко транспортируемая конструкция.
Печка капельница на отработанном масле
Одним из видов дешевого топлива является отработанное масло. Печка может нагреться до 800-900 °С. На выходном отверстии температура будет 90 °С.
Залить порцию масла и добавить 50-100 г вещества для разжигания (спецжидкость, печное топливо, керосин или дизельное топливо). Это нужно для быстрого розжига печи. Подождать пока процесс горения стабилизируется. Затем можно залить следующую порцию.
Если есть пролитое масло, его нужно сразу же удалить. Горение происходит внутри трубы. Это безопасный процесс. Расход топлива от 0,5 до 1,5 литра в час. Когда печка разгорится, можно подогревать воду.
Печка капельница на отработанном масле
Рекомендованные к использованию: соляровое масло, мазут, отработанное масло, печное топливо. Нельзя применять – бензин, ацетон или другие растворители. Следует избегать попадания воды в топливо.
В специальной литературе есть большое количество подробных инструкций о том, как сделать печь капельницу своими руками. Каждая из таких конструкций уникальна, имеет свои преимущества и недостатки. Можно воспользоваться и магазинным вариантом печки, но доработать его по своему усмотрению.
Печь на солярке своими руками
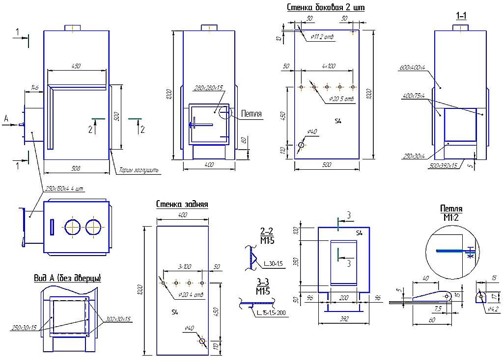
Оборудование для отопления нежилых помещений, работающее на дизельном топливе либо отработанном масле, можно изготовить своими силами из подручных материалов. Самодельная конструкция имеет простейшее устройство, рассчитанная на производство в кустарных условиях. Для работы потребуются доступные материалы и электрические и ручные инструменты, которые есть практически в каждой мастерской.
Печь собственного изготовления состоит из следующих деталей:
- корпус сварной из листовой стали или бочки объемом в 200 литров;
- горелка безнапорная;
- емкость для топлива;
- трубопровод, подающий с запорной арматурой
- дымоход с шибером (заслонкой для изменения тяги);
- патрубок для соединения печи с дымовым каналом.
Общий вид на схеме:
Все перечисленные узлы и детали изготавливаются самостоятельно из стального листа или труб разного диаметра. Печь на солярке своими руками собирается на заранее подготовленном основании и тщательно на нем закрепляется стальными анкерами. Надежный железобетонный фундамент гарантирует защиту от смещений корпуса и возникновения напряжений в дымовом канале, выведенном через стену.
Необходимые материалы и инструменты
Для изготовления отопительного оборудования своими силами понадобится:
- стальной лист толщиной не менее 3 мм для корпуса или бочка объемом 200 литров со стенками достаточной толщины, исключающей деформацию при нагревании;
- уголок или труба профильная прямоугольного сечения;
- трубы металлические разного диаметра для изготовления дымовых каналов и горелки безнапорной.
Выделка деталей и узлов производится неспециализированным электрическим инструментом согласно перечню:
- дрель электрическая с набором сверл;
- машинка шлифовальная угловая с набором отрезных дисков для работы по металлу;
- аппарат сварочный инверторный с набором электродов, потребного диаметра;
- ручной слесарный инструмент: молотки, пассатижи, кусачки, щипцы, ключи гаечные и тому подобное.
Автономная печь и детали для нее производятся в мастерской или под навесом, что позволит выполнять все операции вне зависимости от погодных условий.
Изготовление корпуса и безнапорной горелки
Весь технологический процесс выделки деталей и сборки их в готовое изделие занимает всего несколько дней. На первом этапе производим разметку и раскрой стального листа для корпуса. В случае если в качестве основы используется бочка, то необходимо в нижней ее части сделать технологическое отверстие, которое будет плотно закрываться стальной дверцей. Для обеспечения устойчивого горения потребно обеспечить ее герметичность.
Чертеж нижней части печи:
Чертеж верхней части:
Из подготовленных деталей при помощи электросварки собираем корпус. Контроль качества швов осуществляется при помощи керосина и мела. Этот способ позволяет обнаружить даже самые микроскопические зазоры. Контроль производится следующим образом: с наружной стороны стыки прочерчиваются мелом. Изнутри на шов наливается небольшое количество керосина, который способен проникать через трещины. Потемнение мела покажет место дефекта.
Горелка безнапорная имеет корпус из стальной трубы с внутренним диаметром 216 мм, состоящий из двух частей одетых друг на друга. В верхней части их привариваются крышки с вырезом по центру. По боковым поверхностям корпуса высверливаются пять рядов отверстий. В нижней части врезан подающий трубопровод и узел, через который происходит подача воздуха необходимого для сжигания воздуха.
Он представляет собой отрезок трубы, заглушенный сверху стальной пластиной, в которой по двум окружностям просверлены отверстия. Узел подачи воздуха приваривается к днищу печки вокруг выреза. Выполнение основных технологических операций: сварочные работы, резка и высверливание отверстий не требуют специфических навыков и большого опыта металлообработки.
Принцип действия безнапорной горелки
Подача дизельного топлива в испарительный резервуар происходит через трубопровод и регулируется запорной арматурой. Соляра поджигается через отверстие, предназначенное для подачи воздуха. Устойчивая тяга возникает после достижения определенной температуры, когда испарение дизтоплива станет постоянным. Смешивание паров топлива с воздухом происходит над пластиной воздушного узла, где он и горит.
Дизельное топливо и отработанное масло имеет достаточно резкий запах и лучше всего такие печи использовать в гараже или ином нежилом помещении. Установка обогревателя должна производиться в соответствии с требованиями пожарной безопасности. По отзывам владельцев жидкостных печей такой конструкции, составляет величину в 0,2-0,4 литра в час.
Компактная печка на жидком топливе
Как заводские, так и самодельные модели печек на солярке, керосине или масле выделяются своей компактностью и мобильностью. При этом они сохраняют отличные показатели по теплоотдаче. Хотя подобные агрегаты имеют незначительные размеры, они превосходно справляются со своей задачей в пределах технических характеристик.
Расход топлива даже в зависимости от модели, вида горючего и от характеристик по мощности невысокий. К примеру, пользующиеся популярностью печи средней мощности на 2,5 кВт за один час работы потребляют не более 200 мл дизтоплива. При использовании масла или керосина существенной разницы по расходу чувствоваться не будет.
Обычный керогаз имеет много общего с устройством современных чудо печек на солярке. Они используют тот же принцип работы. Благодаря простому и понятному устройству агрегата, его можно сделать своими руками.

Устройство и принцип действия
Если устройство заводской модели способно заинтересовать далеко не каждого, то самодельные варианты вызывают особый интерес.
В любом случае, знать устройство и принцип работы печи на дизельном топливе будет полезно.
Конструкция состоит из:
- топливного съёмного бака;
- основного рабочего блока с фитилем;
- регулирующего винта;
- отражателя;
- горелки;
- в зависимости от конструкции, может присутствовать решётка для приготовления пищи или разогрева воды, которая при необходимости снимается.
Общий принцип работы простой. Из бака самотёком поступает горючая жидкость в чашу с фитилём. Когда бак впервые заполняется, необходимо подождать 10-15 минут, пока фитиль хорошо пропитается, после чего начинают розжиг.

Печь на солярке имеет очень простой принцип работы
В свою очередь, отражатель хорошо и равномерно рассеивает полученное от пламени тепло. Сам он покрыт порошковой краской, чтобы под действием температуры сохранять свои первоначальные свойства. Интенсивность пламени, а следовательно, и излучаемое тепло, регулируются с помощью специального винта. Он же помогает и выключить печь полностью.
Процесс розжига
Принцип работы печи на солярке своими руками понятен, но при разжигании подобного устройства впервые, нужно знать порядок действий и некоторые нюансы.

Печку на солярке удобно брать с собой в поход или на пикник
Сначала ставится фитиль. Для этого нужно снять решётку и намотать его на цилиндрическое основание в блоке. После чего всё собрать на место и установить решётку.
Бак наполняют горючим и открывают вентиль, чтобы фитиль быстрее пропитался. После чего его можно прикрыть и зажечь. Регулируют пламя специально предназначенным для этих целей винтом. Чтобы печь на дизельном топливе вошла в рабочий режим, нужно немного подождать и дать ей прогреться. После этого необходимо отрегулировать необходимый уровень пламени и интенсивность теплоотдачи.
Погасить печь можно, перекрыв регулирующий вентиль. Знатоки рекомендуют разжигать и тушить обогреватель на улице, это избавит от неприятного запаха в помещении. А также в качестве топлива рекомендуется использовать керосин, который в процессе горения исключает образование неприятного запаха и ощутимо увеличивает КПД печи.
В этом видео подробнее о чудо-печке Солярогаз:
Преимущества и недостатки
Несмотря на очевидные плюсы, у печей на солярке есть и недостатки, которые стоит учитывать при выборе подобных приборов в качестве обогревателя.
Другие варианты печей
Конечно, далеко не все выбирают буржуйки. Многие автовладельцы в поисках самых экономных способов обогрева гаража зимой останавливаются на вариантах, работающих на отработке или от газовых баллонов. Несмотря на то, что схема работы таких печей приблизительно схожа, все же остановимся подробнее на альтернативах, чтобы вы смогли выполнить проект своими руками без какой-либо помощи специалистов.
На отработанном масле
Главное отличие такой конструкции от стандартной буржуйки — она состоит из 2 камер. Их между собой соединяют металлической трубой с отверстиями: из них как раз и выходит пламя.
- нижняя камера — предназначен для отработанного топлива, здесь оно сгорает и превращается в газ;
- верхняя камера — для смешивания образовавшегося газа с воздухом, чем оптимальнее конструкция — тем лучше теплоотдача.




Порядок работы:
- берем листовой металл и придаем ему нужную конфигурацию, этот этап можно пропустить, если у вас есть готовая круглая либо прямоугольная металлическая емкость;
- делаем из него нижний отдел, в который заливается отработанное топливо, изготавливаем заслонку, чтобы можно было регулировать поступающий в камеру воздух;
- приделываем ножки снизу из толстой проволоки или любого подручного материала — обеспечат устойчивость печи;
- в отверстие сверху вставляем перфорированную трубу с толстыми металлическими стенками — она служит опорой для верхнего отсека и постоянно подвергается воздействию высокой температуры, поэтому должна быть надежной;
- для изготовления верхней камеры берем металлическую заготовку цилиндрической формы;
- финальный штрих — дымоход, устанавливается сверху.
Длительного горения
Такую печь легко изготовить из старого газового баллона. Либо металлической бочки с прочными стенками. Обязательные условия:
- цилиндрическая форма;
- вертикальное расположение.
Для изготовления необходимо сварить между собой металлический круг, выполняющий функцию груза, и небольшую трубу. Они помещаются непосредственно в заготовку и обеспечивают равномерное горение топлива за счет стабильной подачи воздуха.


Сверху должна быть установлена съемная крышка, а дым выходит по трубе из верхней боковой стороны. Хорошо, если получается приварить ручки — удобство!



Дрова, опилки и любой другой вид твердого топлива закладываются как в камеру первичного сгорания — самый низ цилиндра, так и непосредственно на металлический круг. Длительного горения такие печи называют как раз из-за того, что используемая для растопки древесина медленно тлеет и выделяет газ, который и сгорает в верхней части, обеспечивая нужный уровень тепла.
Кирпичная
Пожалуй, самый трудоемкий и далеко не всегда оправданный вариант, который подкупает эстетичным внешним видом и высоким КПД.



Для того, чтобы придать конструкции устойчивость и повысить пожаробезопасность, необходимо возвести фундамент.
Кирпичная кладка тоже осуществляется по специальной схеме, чтобы повысить прочность до максимального уровня. Для склейки используется глиняный раствор, а швы между фрагментами достигают 1,5 см.
Также придется изготовить топочную и поддувальную дверцы. Для золы необходимо поставить решетку. Не забудьте про чугунную панель: на ней и будет размещено твердое топливо. Конечным пунктом выглядит выполнение задвижки, но это мелочь в сравнении с тем, что предстоит выполнить до.
Вам в помощь чертежи уже опробованных на практике проектов.




























































